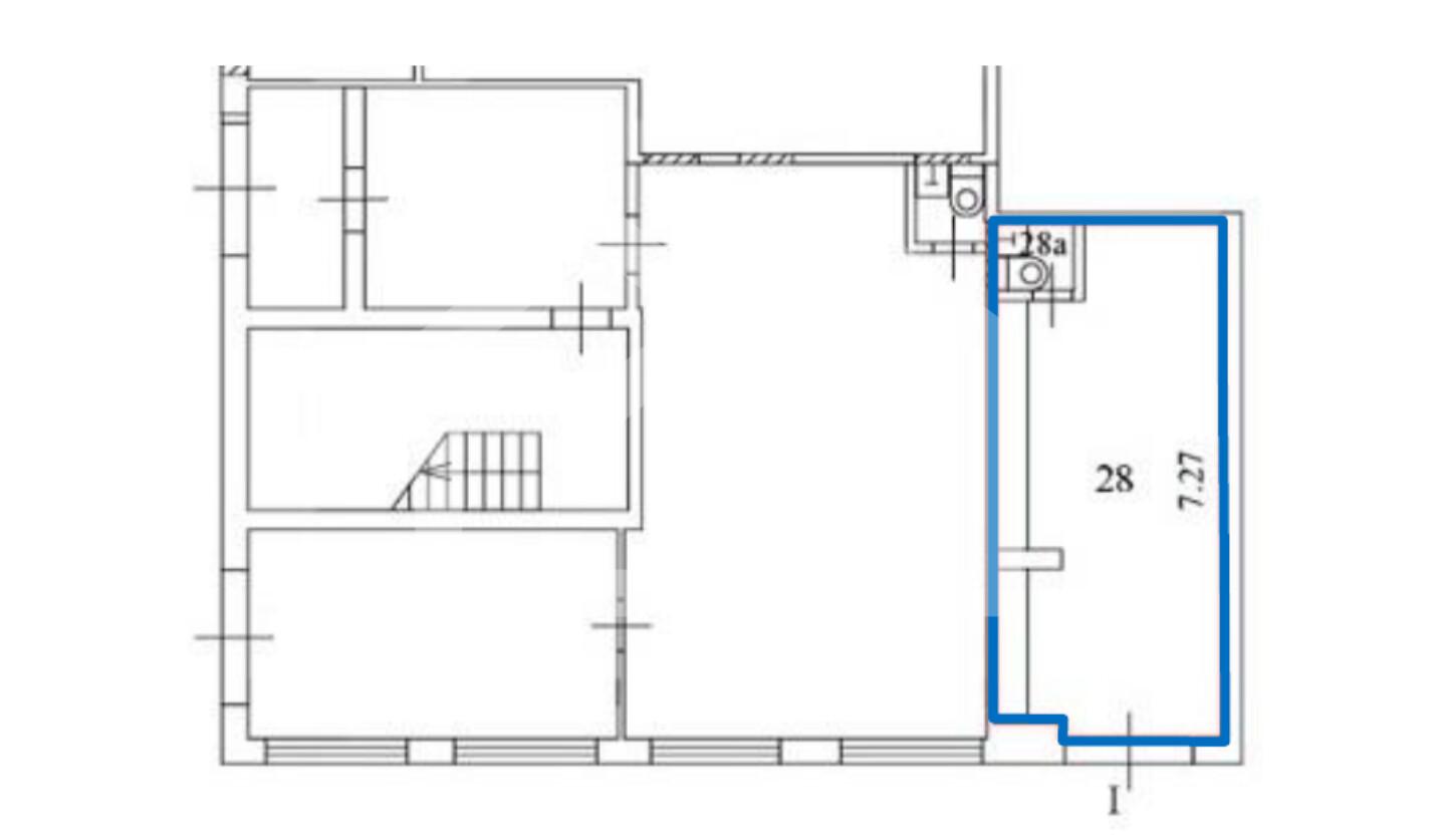
Продажа торговой площади в ЖК «Russian Design District» (Рашен Дизайн Дистрикт), 96,8 м2
Цена:
35 421 540 ₽
Цена м²:
365 925 ₽
г Москва, поселение Десеновское, ул 1-я Ватутинская, д 12 к 2
Помещение свободного назначения в СВАО. Плотный жилой массив. Сложившееся торговое окружение. Соседи: ПВЗ «СДЭК», супермаркет «Чижик», автосалон «Автохаус». Ближайшая станция метро - Окружная (7 минут пешком). Интенсивный автомобильный и пешеходный трафик. 1 этаж. Отдельный вход с улицы. Свободная планировка. Электрическая мощность: 7 кВт. Высота потолков: 2,85 м. Наземная парковка. Рядом остановка общественного транспорта. Собственная УК.
