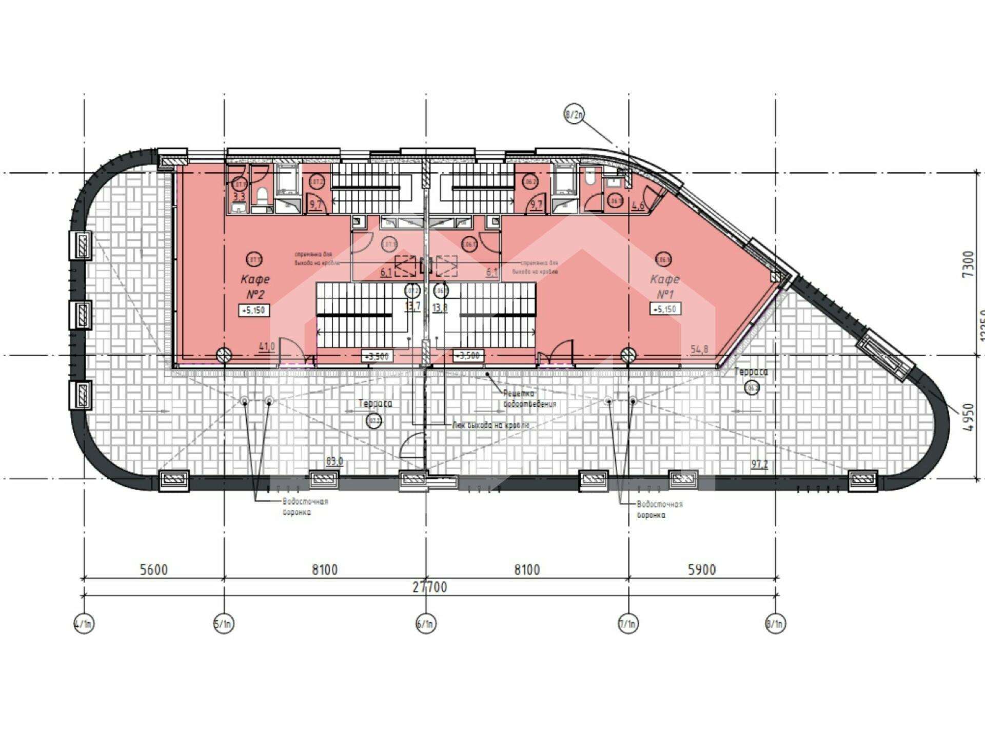
Продажа торговой площади в ЖК «Russian Design District» (Рашен Дизайн Дистрикт), 96,8 м2
Цена:
35 421 540 ₽
Цена м²:
365 925 ₽
г Москва, поселение Десеновское, ул 1-я Ватутинская, д 12 к 2
Помещение свободного назначения формата Street Retail в ЖК "Primavera". 15 минут пешком от станции метро Спартак. Рядом МКАД в 2 км. Плотный жилой массив. Сложившееся торговое окружение. Интенсивный пешеходный и автомобильный трафик. Два этажа. Отдельный вход с улицы. Открытая планировка. Под чистовую отделку. Витринное остекление. Зона разгрузки/погрузки. Вытяжка для общепита. Электрическая мощность: 100 кВт. Высота потолков: 4 м.
