Продажа торговой площади в ЖК «Russian Design District» (Рашен Дизайн Дистрикт), 96,8 м2
Цена:
35 421 540 ₽
Цена м²:
365 925 ₽
г Москва, поселение Десеновское, ул 1-я Ватутинская, д 12 к 2
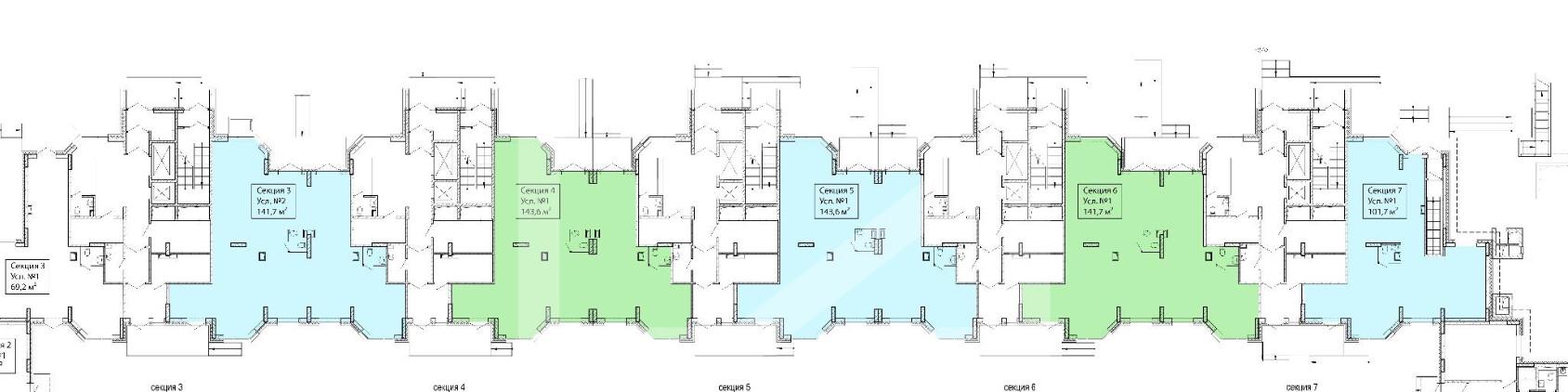
Помещения свободного назначения в ЖК "Восточный". ЖК состоит из 11 корпусов переменной этажности (от 14 до 17 этажей), рассчитанных на 3 153 квартиры. 7 минут на автомобиле от ж/д станции "Звенигород". Плотный жилой массив. Сложившееся торговое окружение. Интенсивный автомобильный и пешеходный трафик. 1 этаж 17-этажного жилого дома. 9 отдельных входных групп с фасада и 5 со двора. Открытая планировка. 1 помещение: 141.7 кв.м; 2 помещение: 143.6 кв.м; 3 помещение: 143.6 кв.м; 4 помещение: 141.7 кв.м; 5 помещение: 101.7 кв.м. Вытяжка под общепит. Электрическая мощность: 150 кВт. Высота потолков: 4.2 м. Витринное остекление. Возможность размещения вывески. Зона погрузки/разгрузки. Наземная парковка. Территория не огорожена.
Есть оферты от арендаторов:
(ПВЗ Ozon, WB, Цветы, Аптека, Строительный магазин, Детский клуб, Салон
красоты, Кофейня и др).
