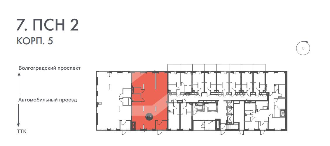
Продажа торговой площади в ЖК «Russian Design District» (Рашен Дизайн Дистрикт), 96,8 м2
Цена:
35 421 540 ₽
Цена м²:
365 925 ₽
г Москва, поселение Десеновское, ул 1-я Ватутинская, д 12 к 2
Коммерческое помещение в новом комплексе апартаментов «NICE LOFT». Подойдет мод медицину. Первая линия Автомобильного проезда. Район плотной жилой застройки.. Более 2 240 апартаментов. 5000 жителей. 7 минут пешком от ст. метро «Калитники». Стабильный пешеходный и автомобильный трафик. Удобный съезд на ТТК. Напротив расположена остановка общественного транспорта. Коммерция только на первой линии. 1 этаж. отдельный вход. Зальная планировка. Высота потолков: 3.1 м. эл. мощность 21.5 кВт. Витринное остекление. Парковка на территории комплекса. Ввод - 3 квартал 2025 года.
