Аренда склада в г. Видное, 4 000 м2
Аренда в месяц:
5 860 000 ₽
Цена м²/год:
17 580 ₽
Московская обл, г Видное, пгт Горки Ленинские, промзона Технопарк, ул Западная, зд 3
Склад формата Light Industrial в цифровом индустриальном парка «Коледино», в городском округе Подольск на участке 365 га. 18 км от МКАД и в 8 км от ЦКАД. Рядом Симферопольское шоссе, собственный съезд с трассы М-2 «Крым». 1 этаж. Открытая планировка. Цифровой промышленный коворкинг Industrial City в формате Light Industrial прошел сертификацию ассоциации по уровню готовности зданий к облачным подключениям и соответствию стандартам цифровой экономики. Парки Industrial City подключены к мощным центрам обработки данных, имеют высокий уровень надежности и безопасности. Готовая инженерная инфраструктура, оборудованные парковочные места, доступ к производственно-складским помещениям 24/7, комплексная эксплуатация объектов, охраняемая территория.
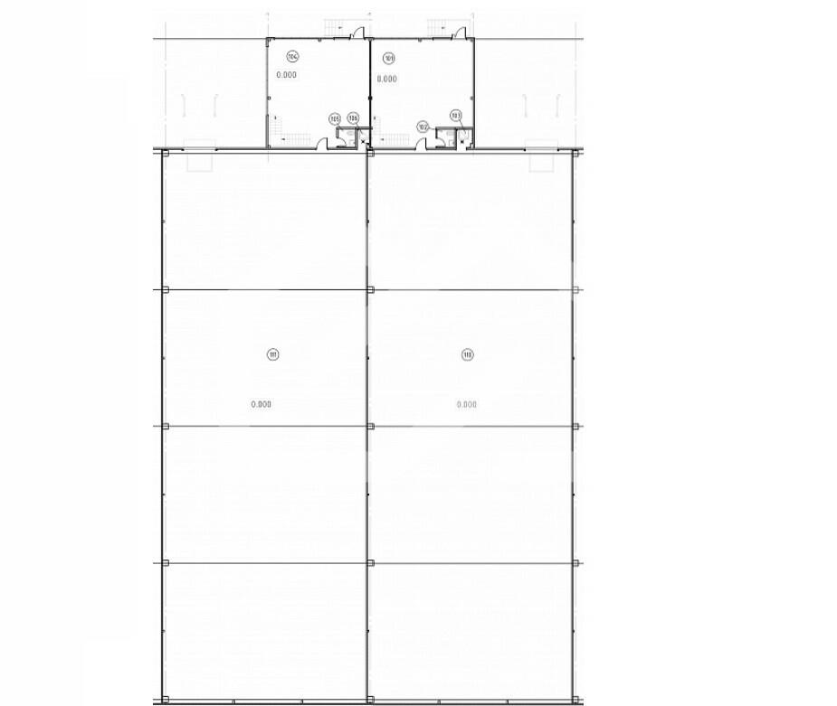
Технические характеристики: Корпус Е
Площадь блока: 2084м2 (2х1042м2).
Склад - 1744м2, офис - 340м2.
Шаг колонн: 18х12 м.
Высота потолка: 8 м - до низа металлоконструкций.
Ворота - доковые 2 шт.
Нагрузка на пол: 5т/м².
Количество грузовых парковочных мест - 2, легковых - 6
Готовность - 1 кв. 2025 г.
Возможно приобретение в ипотеку.
