Аренда склада в г. Видное, 4 000 м2
Аренда в месяц:
5 860 000 ₽
Цена м²/год:
17 580 ₽
Московская обл, г Видное, пгт Горки Ленинские, промзона Технопарк, ул Западная, зд 3
Предлагается помещение под пищевое производство общей площадью 2000 кв. м. в технопарке Парк Рябиновая.
Преимущества:
Первая линия Рябиновой улицы.
10 минут пешком от ст. метро Мещерская.
Развитая транспортная инфраструктура, выезд на СЗХ, Боровское шоссе, 5 минут на транспорте от МКАД.
Напротив остановка общественного транспорта.
Сложившееся торгово-промышленное окружение.
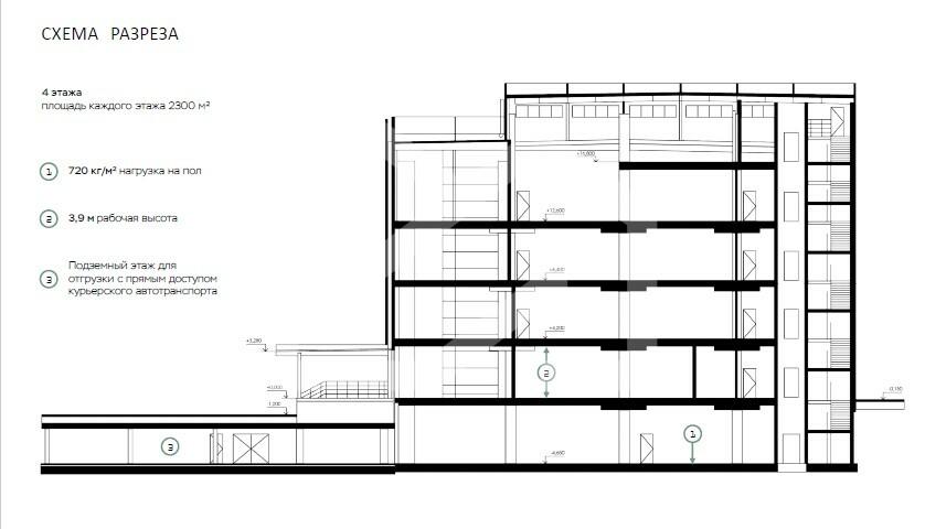
1 этаж 5-ти этажного складского здания.
Зальная планировка.
Центральное отопление, водоснабжение, промышленная канализация.
Система пожаротушения/оповещение.
Пандус для малотоннажного транспорта, автоматические секционные ворота.
Возможна аренда большего или меньшего метража.
Отдельно арендуются офисные блоки от 100 кв.м.
Огороженная территория.
Собственный паркинг.
Подходит для организации фабрики-кухни и сортировки, хранения пищевой продукции и экспресс-доставки.
Основное ВРИ: пищевое производство (6.4).
Ввод объекта в эксплуатацию: середина 2025 года.
Цена включает НДС и ОРЕХ.
Прямой представитель собственника, без комиссии для арендатора.
Технические характеристики:
Нагрузка на пол: 720 кг. на м2.
Высота потолков: 3,9 м.
Сетка колонн: 8*8.
Мощность электричества: до 500 кВт на 1000 кв. м. арендуемой площади.
