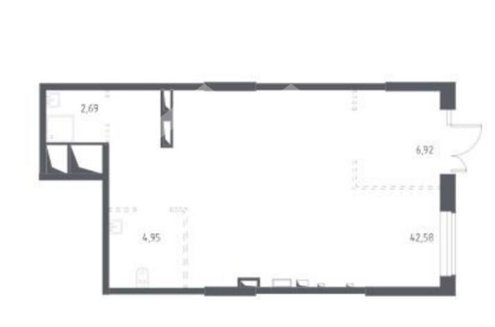
Продажа торговой площади в ЖК «Russian Design District» (Рашен Дизайн Дистрикт), 96,8 м2
Цена:
35 421 540 ₽
Цена м²:
365 925 ₽
г Москва, поселение Десеновское, ул 1-я Ватутинская, д 12 к 2
Помещение свободного назначения формата Street Retail в ЖК "Остафьево", Корпус 13. ЖК состоит из 27 корпусов переменной этажности (от 10 до 14 этажей), рассчитанных на 8 555 квартир. 10 минут на автомобиле от станции МЦД-2 "Щербинка" и "Остафьево". 1 км до Остафьевского шоссе, 1.6 км до Рязановского шоссе. Плотный жилой массив. Сложившееся торговое окружение. Высокий автомобильный и пешеходный трафик. 1 этаж 14-этажного жилого дома. Отдельный вход с улицы. Открытая планировка. Электрическая мощность: 27 кВт. Высота потолков: 4 м. Витринное остекление. Возможность размещения вывески. Наземная парковка. Рядом остановка общественного транспорта.
