Аренда склада в г. Видное, 4 000 м2
Аренда в месяц:
5 860 000 ₽
Цена м²/год:
17 580 ₽
Московская обл, г Видное, пгт Горки Ленинские, промзона Технопарк, ул Западная, зд 3
Кадастровый номер: 50:31:0030802:2
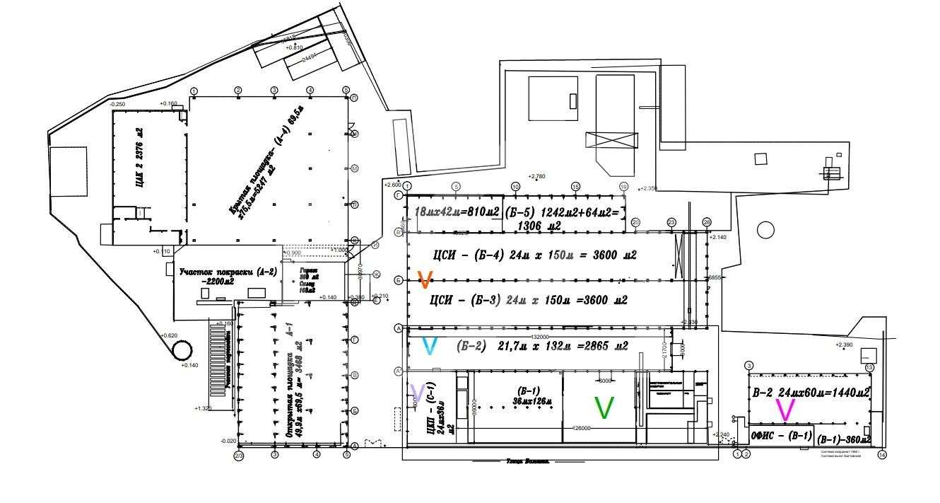
Производственно-складское помещение в Чехове, рп. Столбовая. Так как корректный адрес отсутствует на Яндекс.Картах, введен ближайший. Первая линия ул. Большая. 15 минут пешком от ст. "Столбовая". 1 этаж. Открытая планировка. Шесть больших ворот. Пол антипыль. На территории есть газ, который можно использовать в производстве. Возможность деление площади.
Технические характеристики:
Общая площадь корпуса: 17 869 кв.м.
Размер помещения 126*141м.
Высота потолка 8 м.
Нагрузка на пол: 5 т/м.
Большой запас по электричеству (на всю территорию выделено 3,4 МВт с возможностью увеличения).
Кран- балки от 5 т.
Эксклюзивное предложение компании.
Прямая долгосрочная аренда от собственника.
