Продажа торговой площади в ЖК «Russian Design District» (Рашен Дизайн Дистрикт), 96,8 м2
Цена:
35 421 540 ₽
Цена м²:
365 925 ₽
г Москва, поселение Десеновское, ул 1-я Ватутинская, д 12 к 2
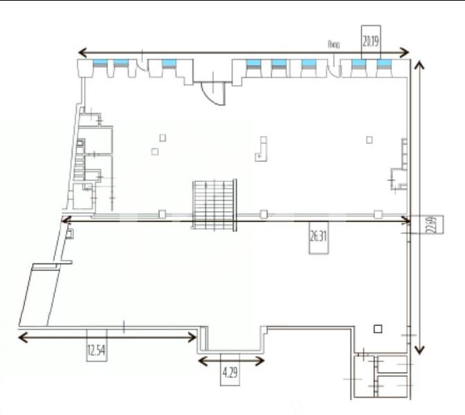
Помещение свободного назначения формата Street Retail в клубном доме Artisan на Арбате. Первая линия. Дом состоит из двух корпусов. 5 минут пешком от станции метро Смоленская. Центр густонаселённого жилого массива. Сложившееся торговое и деловое окружение. Сверхинтенсивный пешеходный и автомобильный трафик. 1 этаж. Отдельный вход со стороны ул. Арбат. Открытая планировка. Дизайнерский ремонт. Витринное остекление. Зона погрузки/разгрузки с -1 уровня автостоянки и грузовыми лифтами. Точки для подключения к инженерным системам. Окна с рамой из сосны цвет профиля Remmers. Временные напольные радиаторы отопления, вертикальная разводка систем горячего и холодного водоснабжения, канализации, приточно-вытяжной вентиляции и кондиционирования воздуха. Электрический кабель подведен к электрощиту механизации. Электрическая мощность: 20 кВт. Высота потолков: от 3.3 до 3.6 м.
