Продажа торговой площади в ЖК «Russian Design District» (Рашен Дизайн Дистрикт), 96,8 м2
Цена:
35 421 540 ₽
Цена м²:
365 925 ₽
г Москва, поселение Десеновское, ул 1-я Ватутинская, д 12 к 2
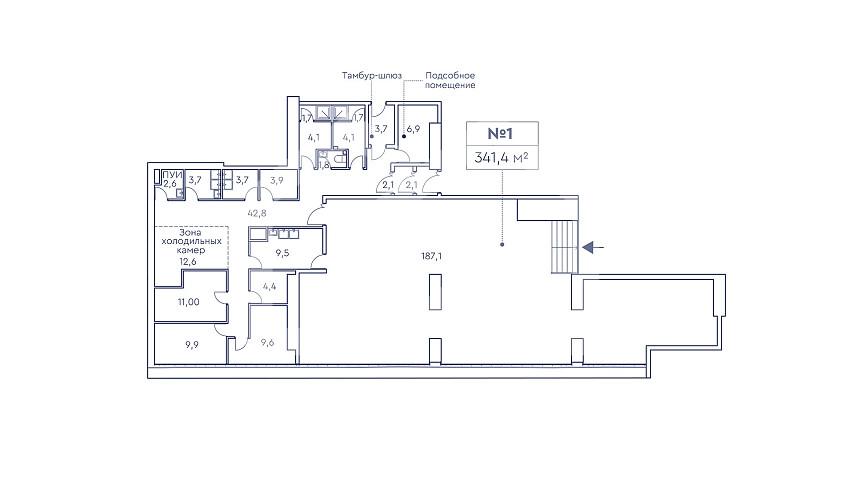
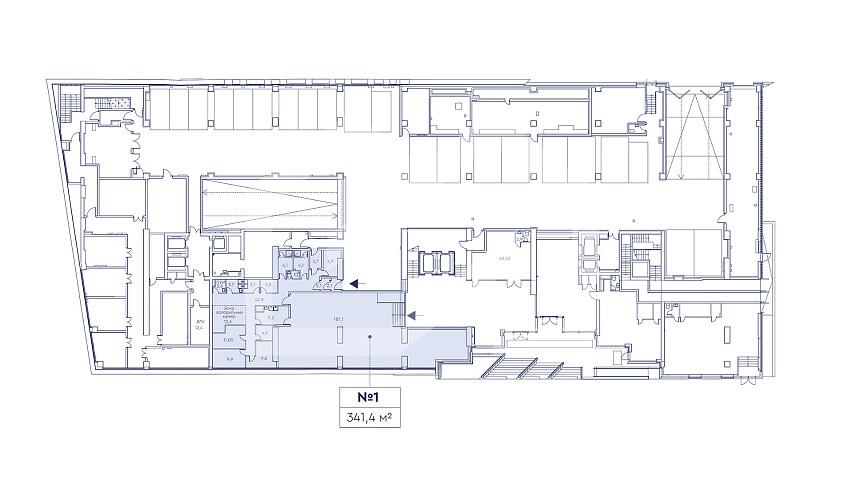
Помещение свободного назначения формата Street Retail в жилом комплексе "RED 7" на пересечении проспекта Академика Сахарова и Садового кольца. Первая линия. ЖК состоит из 19-этажного премиального дома, рассчитанного на 289 апартаментов. 6 минут пешком от станции метро "Красные Ворота". 1.5 км до проспекта Мира, 2.8 км до Олимпийского проспекта, 3.5 км до ТТК. Плотный жилой массив. Сложившееся торговое окружение. Рядом ресторан, салон красоты, спортивный клуб премиум-класса и др. Сверхинтенсивный автомобильный и пешеходный трафик. -1 этаж, вход в зоне просторного вестибюля со стороны проспекта Академика Сахарова. Открытая планировка. Современные системы вентиляции, кондиционирования, пожаротушения, дымоудаления, отвечающие всем нормам действующего законодательства. Электрическая мощность: 250 кВт. Высота потолков: 3.55 м. Витринное остекление. Возможность размещения вывески. Рядом лестница и лифт, ведущие в торговую галерею. Гостевой подземный паркинг. Рядом остановка общественного транспорта.
