Продажа торговой площади в ЖК «Russian Design District» (Рашен Дизайн Дистрикт), 96,8 м2
Цена:
35 421 540 ₽
Цена м²:
365 925 ₽
г Москва, поселение Десеновское, ул 1-я Ватутинская, д 12 к 2
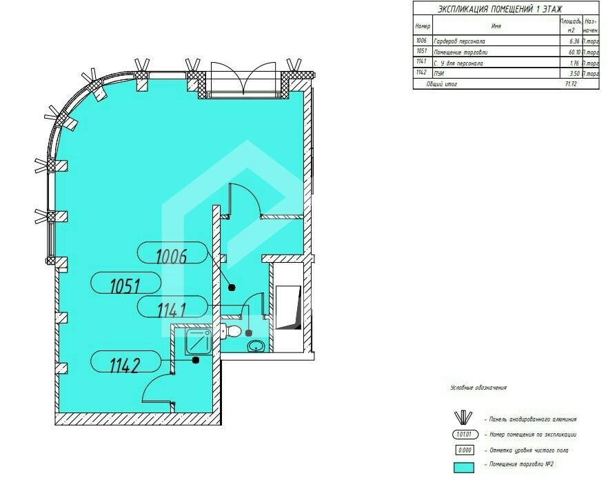
Помещение свободного назначения формата Street Retail в жилом комплексе элит-класса «Sky View». Корпус: Галерея. ЖК состоит из четырёх 20-этажных корпусов, рассчитан на 300 апартаментов. 2 минуты пешком от станции метро Краснопресненская. Плотный жилой массив. Сложившееся торговое окружение. Сверхинтенсивный автомобильный и пешеходный трафик. 1 этаж. Отдельный вход с улицы. Панорамное остекление. Стеклянные распашные двери. 2 мокрые точки. Подземная парковка. Возможность летней террасы. Электрическая мощность: 14 кВт. Высота потолков: 4.7 м.
