Продажа торговой площади в ЖК «Russian Design District» (Рашен Дизайн Дистрикт), 96,8 м2
Цена:
35 421 540 ₽
Цена м²:
365 925 ₽
г Москва, поселение Десеновское, ул 1-я Ватутинская, д 12 к 2
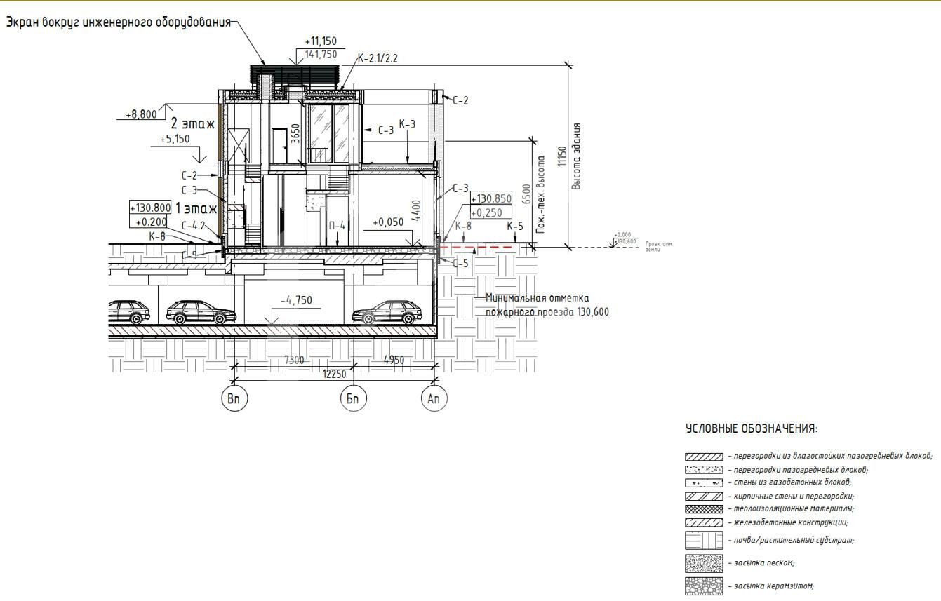
Коммерческое помещение под общепит в жилом комплексе «Клубный город на реке Primavera». Первая линия Покровской набережной. ЖК состоит из 3 кварталов переменной этажности (от 5 до 22 этажей). 13 минут пешком от станции метро Спартак. Район современной жилой застройки. Высокий автомобильный и пешеходный трафик. 1 этаж (148.8 кв. м.), 2 этаж (156.8 кв. м.) и открытая терраса отдельно стоящего здания. 2 отдельные входные группы. Зальная планировка. Панорамное остекление. Вытяжка для общепита. Место для вывески. Парковка вдоль дороги. Есть возможность перепланировки. Электрическая мощность: 80 кВт. Высота потолков: 1 этаж – 3.55 м.; 2 этаж – 3.65 м.
