Продажа торговой площади в ЖК «Russian Design District» (Рашен Дизайн Дистрикт), 96,8 м2
Цена:
35 421 540 ₽
Цена м²:
365 925 ₽
г Москва, поселение Десеновское, ул 1-я Ватутинская, д 12 к 2
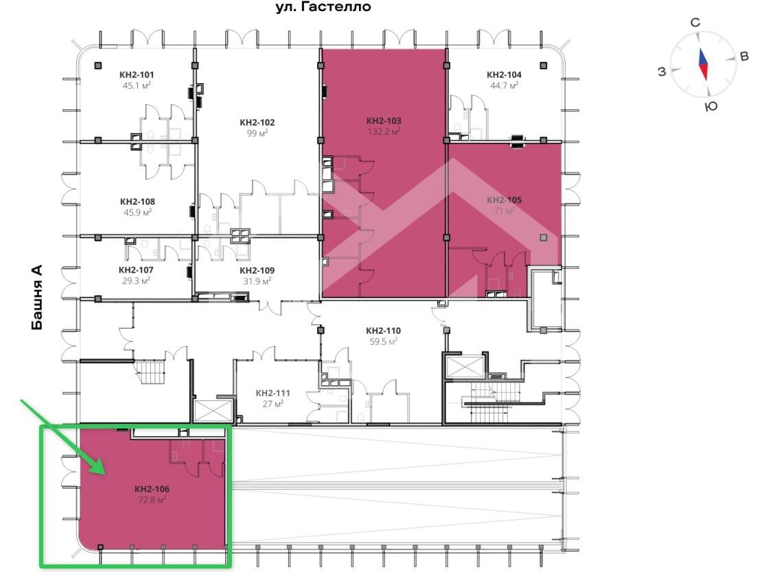
Помещение свободного назначения формата Street Retail в новом ЖК бизнес-класса SOKOLNIKI от девелопера STONE. Ввод в эксплуатацию - 2027 год, разрешение на строительство – июнь 2024 года. Комплекс состоит из трех башен, этажностью от 24 до 33 этажей, рассчитанных на 764 квартиры, между парком Сокольники и набережной реки Яуза. Удобный выезд на ТТК в 2 км, на Садовое кольцо в 6 км. Плотный жилой массив. Интенсивный пешеходный и автомобильный трафик. В 13 минутах ходьбы от станций метро «Сокольники» и «Электрозаводская». 1 этаж торгово-инфраструктурного блока 2 Отдельная входная группа. Открытая планировка. Подземный двухуровневый паркинг.
Технические характеристики:
Площадь блока: 72.8 кв.м
