Продажа торговой площади в ЖК «Russian Design District» (Рашен Дизайн Дистрикт), 96,8 м2
Цена:
35 421 540 ₽
Цена м²:
365 925 ₽
г Москва, поселение Десеновское, ул 1-я Ватутинская, д 12 к 2
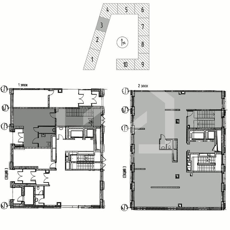
ЖК: Серебряный фонтан, Корпус: Серебряный фонтан, Предлагается на продажу помещение в ЖК «Серебряный Фонтан». Витринное остекление, открытая планировка, отдельные входные группы. Удобная локация дает возможность быстро добираться как до центра Москвы, так и в любой другой район столицы, используя личный или городской транспорт. Метро Алексеевская находится в 500 метрах. Для автомобилистов: 700м до выезда на Проспект Мира и 10 минут езды до центра Москвы., Всего этажей: 1 и 2 этаж. Площадь блока: 330.3 кв.м. Количество входов: 1. Окна: витринные
