Продажа торговой площади в ЖК «Russian Design District» (Рашен Дизайн Дистрикт), 96,8 м2
Цена:
35 421 540 ₽
Цена м²:
365 925 ₽
г Москва, поселение Десеновское, ул 1-я Ватутинская, д 12 к 2
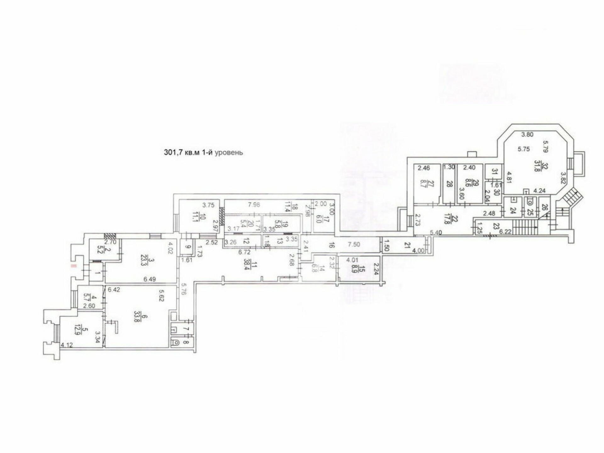
Помещение свободного назначения под офис/банк в элитном жилом комплексе на Можайском шоссе. Первая линия домов. Проходное и проездное место. Въезд на территорию через шлагбаум. 1, 2, 3 этаж. Отдельный вход с Можайского шоссе и два входа с торца здания и с парковки. Из кабинетов открывается вид на живописное озеро. Наземный паркинг на охраняемой территории. Возможно размещение вывески на фасаде. Рядом остановки общественного транспорта.
Технические характеристики
Электрическая мощность: 50кВт
Высота потолков: от 2.8 до 3.2м
1 этаж - 301,7кв. м,
2 этаж - 202,5 кв. м,
3 этаж - 202,8 кв.м.
