Продажа торговой площади в ЖК «Russian Design District» (Рашен Дизайн Дистрикт), 96,8 м2
Цена:
35 421 540 ₽
Цена м²:
365 925 ₽
г Москва, поселение Десеновское, ул 1-я Ватутинская, д 12 к 2
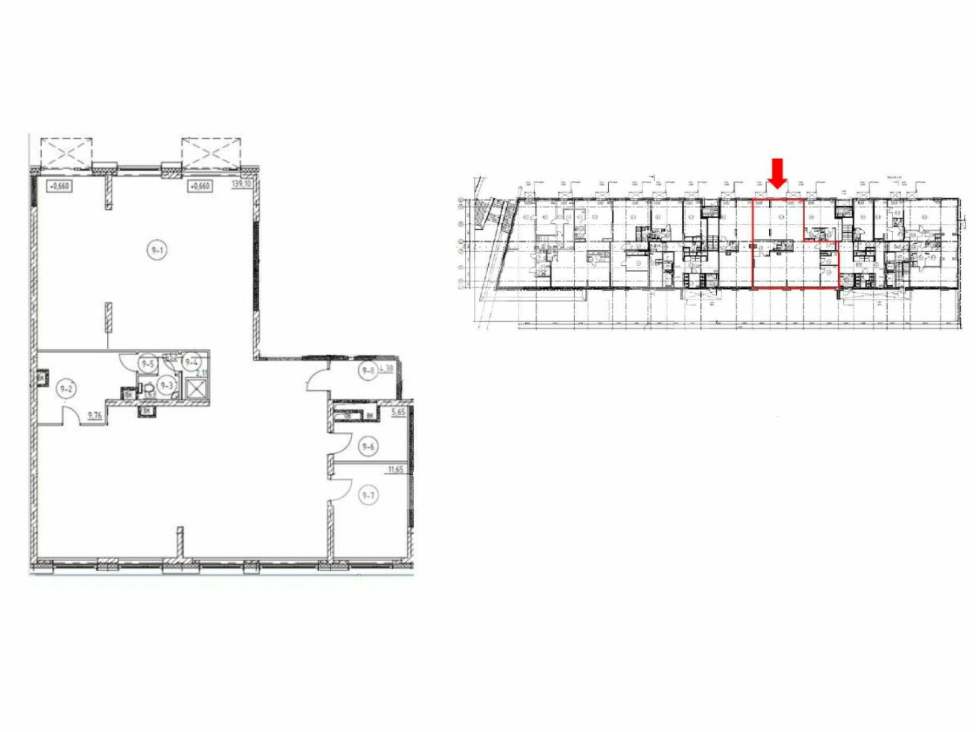
Помещение свободного назначения формата Street Retail в ЖК бизнес-класса "Nagatino i-Land", корпус 1. 12 минут пешком от станции метро Технопарк. Жилые корпуса переменной этажности от 5 до 34 этажей. Общее число квартир: 3 250, около 7000 жителей. Район плотной жилой застройки на набережной Москва-реки. Стабильный автомобильный и пешеходный трафик. 1 этаже 14-этажного жилого дома. 2 отдельные входные группы. Открытая планировка. Витринное остекление. На территории комплекса имеется подземный паркинг на 1691 м/м.
Технические характеристики:
Площадь блока: 177.7 кв.м
Электрическая мощность: 35 кВт
Высота потолков: 5.1 м
