Продажа торговой площади в ЖК «Russian Design District» (Рашен Дизайн Дистрикт), 96,8 м2
Цена:
35 421 540 ₽
Цена м²:
365 925 ₽
г Москва, поселение Десеновское, ул 1-я Ватутинская, д 12 к 2
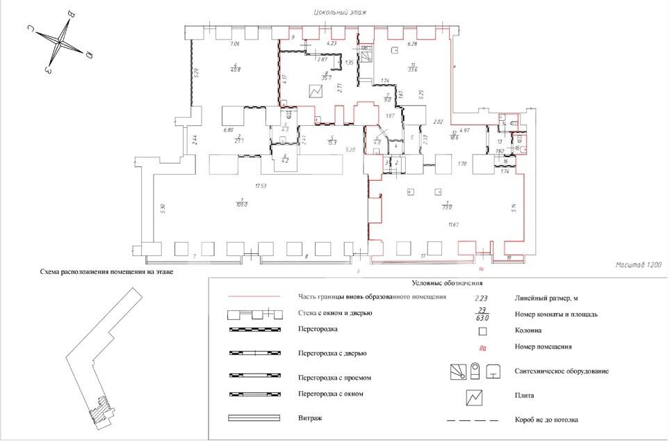
Помещение свободного назначения формата Street Retail в Тверском районе в жилом доме La Ru. Первая линия ул. Петровка. 7 минут пешком от станции метро Трубная. Центр густонаселенного жилого массива. Сложившееся торговое окружение. Сверхинтенсивный автомобильный и пешеходный трафик. Цокольный этаж 5-этажного жилого дома. 2 отдельные входные группы: с улицы и со двора. Витринное остекление. Место для вывески. Парковка вдоль улицы. Напротив пешеходный переход. Электрическая мощность: 75 кВт. Высота потолков: 3.5 м.
