Аренда склада в г. Видное, 4 000 м2
Аренда в месяц:
5 860 000 ₽
Цена м²/год:
17 580 ₽
Московская обл, г Видное, пгт Горки Ленинские, промзона Технопарк, ул Западная, зд 3
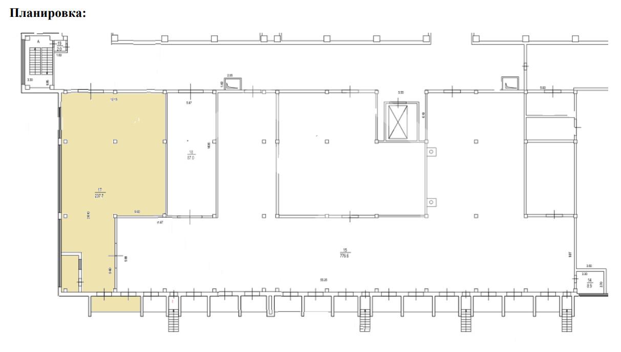
Предлагается складское помещение общей площадью 910 кв. м. в СВАО, р-н Отрадное. 1, 2 этаж ОСЗ.
Преимущества:
Первая линия, пересечение Сигнального проезда и СВХ.
5 минут пешком от ст. "Владыкино".
Удобная транспортная доступность: выезд на Алтуфьевское шоссе (2 км), МКАД (8 км), ТТК (9 км).
Напротив остановка общественного транспорта.
Теплый сухой склад.
Оборудован стеллажами.
Грузовой лифт.
Док для еврофур.
Возможность деления площади по этажам.
Закрытая, охраняемая территория.
Доступ 24/7.
Парковка.
Технические характеристики:
Общая площадь: 910 кв. м.
1 этаж - 160 кв. м.
2 этаж - 750 кв. м.
Рабочая высота: 4.8 - 5.5 м.
Нагрузка на пол: 5 т/кв. м.
Электрическая мощность: 50 кВт.
