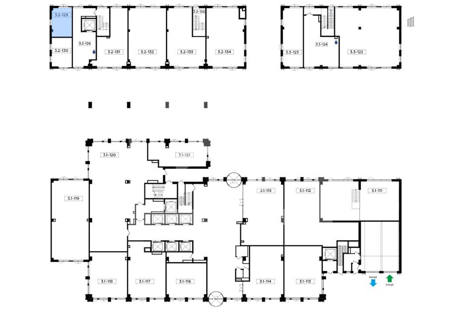
Продажа торговой площади в ЖК «Russian Design District» (Рашен Дизайн Дистрикт), 96,8 м2
Цена:
35 421 540 ₽
Цена м²:
365 925 ₽
г Москва, поселение Десеновское, ул 1-я Ватутинская, д 12 к 2
Помещение свободного назначения в Бизнес-квартале "Прокшино". Корпус: 3.2. БК состоит из 5 корпусов переменной этажности (от 12 до 13 этажей). 2 минуты пешком до станции метро "Прокшино". 1.3 км до Новомихайловского шоссе, 3 км до Калужского шоссе, 3.6 км до Филимонковского шоссе. Плотный жилой массив. Сложившееся торговое окружение. Интенсивный автомобильный и пешеходный трафик. 1 этаж 12-этажного здания. Отдельный вход с улицы. Открытая планировка. Высота потолков: 4.5 м. Электрическая мощность: 15 кВт. Витринное остекление. Возможность размещения вывески. Рядом остановка общественного транспорта.
Ввод в эксплуатацию - II квартал 2027.
