Продажа торговой площади у метро Ольховая, 96,8 м2
Цена:
35 421 540 ₽
Цена м²:
365 925 ₽
г Москва, поселение Десеновское, ул 1-я Ватутинская, д 12 к 2
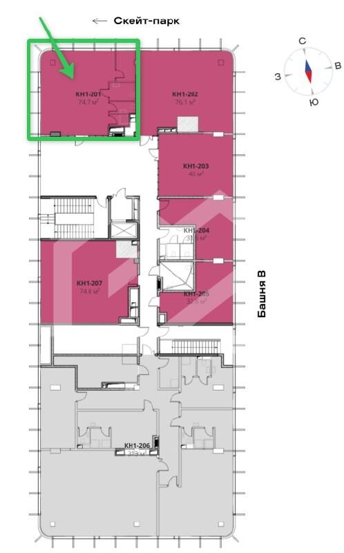
Помещение свободного назначения в новом ЖК бизнес-класса "СТОУН Сокольники". Ввод в эксплуатацию - 2027 год, разрешение на строительство – июнь 2024 года. Комплекс состоит из трех башен, этажностью от 24 до 33 этажей, рассчитанных на 764 квартиры. Находится между парком Сокольники и набережной реки Яуза. 11 минут пешком от станции метро "Сокольники" и 15 минут пешком от станции метро "Электрозаводская". Удобный выезд на ТТК в 2 км, на Садовое кольцо в 6 км. Плотный жилой массив. Сложившееся торговое окружение. Интенсивный пешеходный и автомобильный трафик. 2 этаж торгово-инфраструктурного блока 1. Отдельная входная группа. Открытая планировка. Высота потолков: 4.2 м. Электрическая мощность: 15 кВт. Подземный двухуровневый паркинг. Рядом остановка общественного транспорта.
Так как корректный адрес отсутствует на Яндекс.Картах, введен ближайший.
