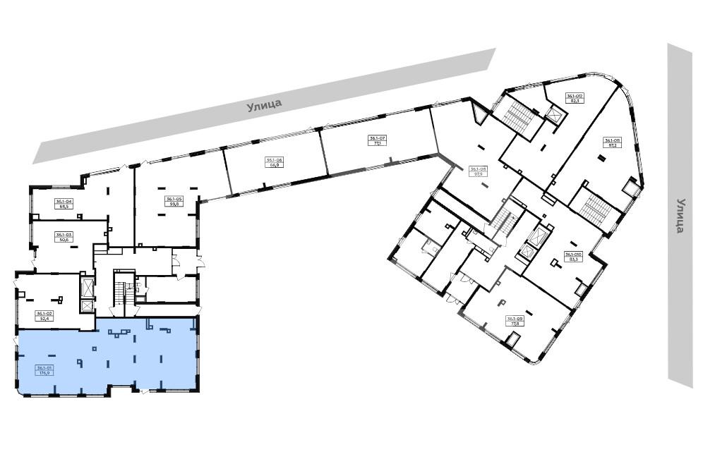
Продажа торговой площади в ЖК «Russian Design District» (Рашен Дизайн Дистрикт), 96,8 м2
Цена:
35 421 540 ₽
Цена м²:
365 925 ₽
г Москва, поселение Десеновское, ул 1-я Ватутинская, д 12 к 2
Помещение свободного назначения формата street retail в ЖК Скандинавия класса «комфорт». Корпус 36.1.1. Комплекс состоит из 30 корпусов, этажностью 7-19 этажей. Густонаселенный жилой район. Интенсивный автомобильный и пешеходный трафик. 12 минут пешком до станции метро "Потапово". 1 этаж 16-этажного жилого дома. Две отдельные входные группы. Открытая планировка. Эл. мощность: 35 кВт. Высота потолков: 4 м. Возможность размещения вывески. Кол-во входов: 2. Дом сдан
