Продажа торговой площади в ЖК «Russian Design District» (Рашен Дизайн Дистрикт), 96,8 м2
Цена:
35 421 540 ₽
Цена м²:
365 925 ₽
г Москва, поселение Десеновское, ул 1-я Ватутинская, д 12 к 2
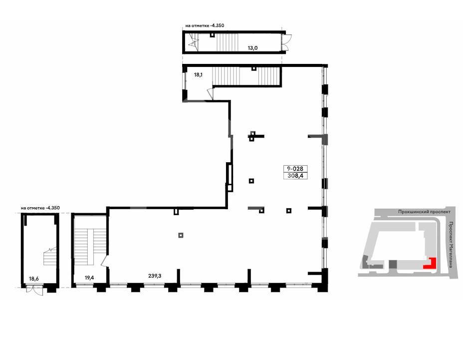
Помещение свободного назначения формата Street Retail в ЖК "Прокшино", Корпус: 9.4 ЖК состоит из 58 корпусов переменной этажности (от 8 до 19 этажей). 5 минут на авто до станции метро "Прокшино". 800 м до Филатовского шоссе, 2 км до Новомихайловского шоссе, 4.3 км до Филимонковского шоссе. Плотный жилой массив. Сложившееся торговое окружение. Интенсивный автомобильный и пешеходный трафик. 1 этаж 16-этажного жилого дома. Открытая планировка. Рядом остановка общественного транспорта.
Технические характеристики:
Высота потолков: 3 м
Эл. мощность: 93 кВт
Вход 1
Ввод в эксплуатацию - IV кв. 2027
