Продажа торговой площади в ЖК «Russian Design District» (Рашен Дизайн Дистрикт), 96,8 м2
Цена:
35 421 540 ₽
Цена м²:
365 925 ₽
г Москва, поселение Десеновское, ул 1-я Ватутинская, д 12 к 2
Производственно-складская база на Клушинском шоссе рядом с д. Поярково.
Преимущества объекта:
-6 км от Ленинградского ш.;
-15 км от аэропорта Шереметьево;
-подходит под шумное/грязное производство;
-ЗУ в собственности;
-объект огорожен забором с воротами;
-возможно открытое хранение;
-закрытая территория;
-парковка на участке.
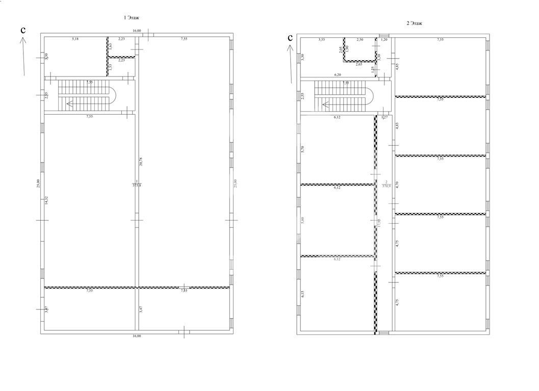
Состав комплекса:
-Ангар 720 кв. м. + антресоль 60 кв. м., высота потолка: 6 м;
-2-этажный производственно-офисный корпус: 720 кв. м. (производство, офис, общежитие), из них:
производственная площадь: 360 кв. м. - 1 этаж,
АБК: 360 кв. м. - 2 этаж, офисы, кабинеты.
Участок 0,4 Га.
ВРИ ЗУ: Для размещения авторемонтной базы и производства строительных материалов.
Технические характеристики:
-отопление, водопровод и канализация - автономные;
-газ проходит по границе участка, возможно подключение
-электрическая мощность: до 150 кВт.
