Продажа производственного помещения на улице Береговой, 11 473,4 м2
Цена:
3 500 000 000 ₽
Цена м²:
305 053 ₽
г Москва, Береговой пр-д, д 4 к 3 стр 5
Предлагается складской комплекс категории "А" общей площадью 1034 кв м формата Light Industrial в 15 км (10 мин) от МКАД по Киевскому шоссе в новом промышленном парке "СОКОЛОВО".
Преимущества:
Комплекс общей площадью 317 тыс.м2 находится в Новой Москве на Киевском шоссе в направлении в Москву.
Напротив аэропорта Внуково.
Отличная транспортная доступность: 100 м от Киевского шоссе, 10 минут до МКАД или 25 минут на общественном транспорте до м. Саларьево или Румянцево, прямо перед входом в парк - остановка автобуса "Соколово" на Киевском шоссе.
Офисные помещения с отделкой входят в стоимость и расположены на 2 уровнях, что позволяет разделить функции офиса и торгового зала.
Парковка на территории комплекса для разных типов а/м.
Закрытая территория.
Технические характеристики в корпусе А:
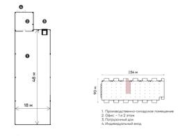
Площадь блока: 1034 кв. м.
Промышленно-складская площадь: 870 м2.
Офисно-торговая площадь: 164 м2.
Мощность: 24 кВт, возможно любое увеличение.
Шаг колонн: 12х18 м.
Высота потолка: 8 м.
Нагрузка на пол: 5 т/м².
Парковка - 2 места для л/а, 1 груз. места.
Зона погрузки/разгрузки: в каждом блоке — погрузочные доки на уровне 1,2 м от земли или ворота на уровне 0 м.
По запросу возможна установка въездной рампы или пандуса.
Пол: бетонный с антипылевым покрытием.
Вентиляция: офисные помещения-вытяжка; складские помещения-естественная.
Система видеонаблюдения.
Плоская кровля с внутренним водостоком.
Возможность установления кран-балки.
Ввод в эксплуатацию: 4 квартал 2026 года.
