Аренда торговой площади в ЖК Прокшино, 91,7 м2
Аренда в месяц:
300 000 ₽
Цена м²/год:
39 252 ₽
г Москва, р-н Коммунарка, Прокшинский пр-кт, д 7
Помещение свободного назначения площадью 117 кв.м на 1 этаже нового жилого комплекса «Спутник» рядом с автобусной остановкой и выездом из двора.
Помещение расположено в непосредственной близости от метро.
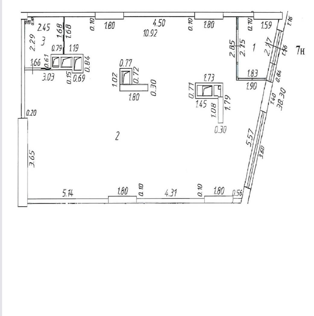
- Площадь 117 кв. м, свободная планировка, без отделки.
- Отдельный вход, есть место для вывески.
- 1 этаж 33- этажного дома.
- Высокие потолки (4,5 м) - можно сделать антресоль на
30% от площади.
- Мокрая точка.
- Электрическая мощность - 21 кВт.
- Воздуховоды: в каждое помещение входит два воздуховода: размеры Ф100 мм и 250х200 с последующим выходом на кровлю.
Помещение находится в зоне с интенсивным пешеходным и автомобильным трафиком. Вход в помещение хорошо виден с дороги, жители проходят с остановки автобуса мимо этого помещения. Рядом также расположен выезд из двора.
В 50 метрах - вход в школу. Объект подойдет для кофейни, кафе, магазина, шоу-рума, аптеки, офиса продаж, салона красоты, маникюрного салона, пекарни, пункта выдачи заказов.
Отличная транспортная доступность - 400 м от МКАД.
Рядом Новорижское шоссе, большой новый бизнес-центр, магазины Ашан и Леруа Мерлен, престижный поселок Резиденция Рублево. Планируемое количество жителей - 30 000 человек. Метро Липовая роща построят в 2028/2029 году.
