Продажа производственного помещения на улице Береговой, 11 473,4 м2
Цена:
3 500 000 000 ₽
Цена м²:
305 053 ₽
г Москва, Береговой пр-д, д 4 к 3 стр 5
Складской комплекс категории Light Industrial в промышленном парке Сенькино, общей площадью 340 тыс м2 в пос. Краснопахорское, г. Москва. Первая линия. Развитая транспортная инфраструктура: в 50 м выезд на ЦКАД, между Калужским и Киевским шоссе, 30 минут до МКАД. Доступ к основным магистралям. Планируется открытие Троицкой линии метро. Рядом крупный жилой массив. Стабильный автомобильный трафик. Зона погрузки/разгрузки: 0 и/или 1,2 м. Открытая планировка + офисные блоки. Офисные помещения с отделкой расположены на 2-х уровнях, что позволяет разделить функции офиса и торгового зала. Пол: бетонный с антипылевым покрытием. Вентиляция: офисные помещения-вытяжка; складские помещения-естественная. Система видеонаблюдения. Плоская кровля с внутренним водостоком. Возможность установления кран-балки. Парковка на территории комплекса для разных типов а/м. Прямо перед входом в парк - остановка общественного транспорта до м.Теплый Стан.
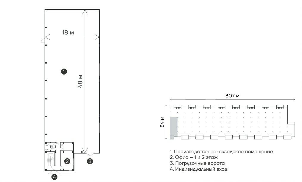
Технические характеристики: Корпус Е
Площадь блока: 1012 кв. м. Возможно объединение любого количества блоков.
Производственно-складская площадь - 836 м2.
Офисно-торговая площадь - 136 м2.
Высота потолков: 8 метров.
Шаг колонн: 12х18.
Нагрузка на пол: 5 т/кв.м.
Кросс-док с двумя типами загрузки: 0 и/или 1,2 м.
Электрическая мощность: 25 кВт.
Ввод в эксплуатацию - 3 кв. 2026 года.
