Аренда офиса в БЦ Северное Сияние, 2 290 м2
Аренда в месяц:
11 175 200 ₽
Цена м²/год:
58 560 ₽
г Москва, ул Правды, д 26
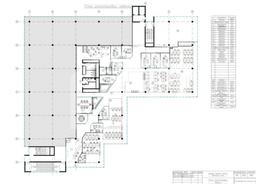
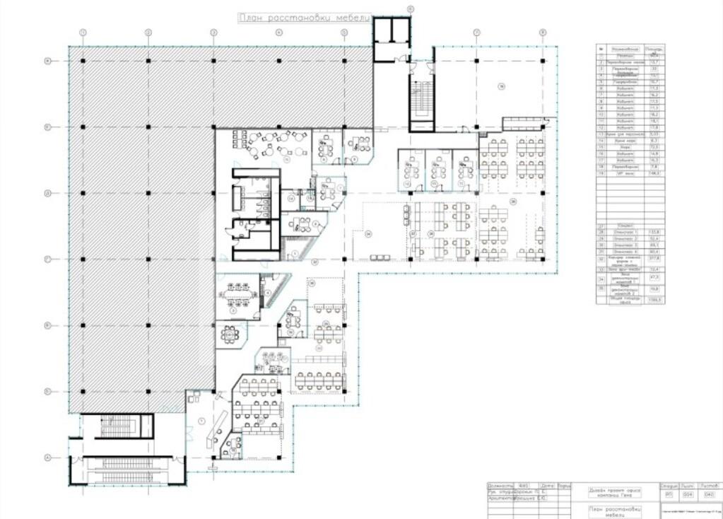
Офис в бизнес-центре «Премиум Вест». 12 минут пешком от станции МЦД-1 Сетунь. Имеет прямую транспортную связь с МКАД (менее 500 м). Развитая внешняя и внутренняя инфраструктура. 8 этаж 10-этажного здания. Планировка смешанная: стойка ресепшн и зона ожидания посетителей, зоны открытого пространства, переговорные, кабинеты руководителей, технические помещения, кухни и сан. узлы. В офисе выполнен качественный евро ремонт. Приточно-вытяжная вентиляция, кондиционирование с системой климат контроля, центральное отопление, во всех помещениях теплые полы, противопожарная система, высокоскоростной интернет. Территория находится под круглосуточной охраной и видеонаблюдением, доступ в здание осуществляется посредством СКУД. Наземная парковка на 1 980 машиномест. Высота потолков: 3 м.
