Продажа производственного помещения на улице Береговой, 11 473,4 м2
Цена:
3 500 000 000 ₽
Цена м²:
305 053 ₽
г Москва, Береговой пр-д, д 4 к 3 стр 5
Складской комплекс категории Light Industrial в промышленном парке "Сенькино" общей площадью 340 тыс м2 в пос. Краснопахорское, г. Москва. Первая линия. Развитая транспортная инфраструктура: в 50м выезд на ЦКАД, между Калужским и Киевским шоссе, 30 минут до МКАД. Доступ к основным магистралям. Планируется открытие Троицкой линии метро. Рядом крупный жилой массив. Стабильный автомобильный трафик. Ввод объекта в эксплуатацию 3 кв. 2025 года. Зона погрузки/разгрузки: 0 и/или 1,2 м. Открытая планировка + офисные блоки. Офисные помещения с отделкой расположены на 2 уровнях, что позволяет разделить функции офиса и торгового зала. Пол: бетонный с антипылевым покрытием. Вентиляция: офисные помещения-вытяжка; складские помещения-естественная. Система видеонаблюдения. Плоская кровля с внутренним водостоком. Возможность установления кран-балки. Парковка на территории комплекса для разных типов а/м. Рядом остановки общественного транспорта.
Технические характеристики:
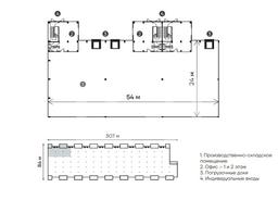
Площадь блока: 1740 кв. м.
Производственно-складская площадь: 1212 м2.
Офисно-торговая площадь: 528 м2.
Возможно объединение любого количества блоков.
Рабочая высота потолков: 8 метров.
Шаг колонн: 12х18.
Нагрузка на пол: 5 т/кв.м.
Ворота в 0 или док на высоте 1,2 м - 3шт.
Парковка: 3 грузовых, 6 легковых мест.
