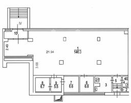
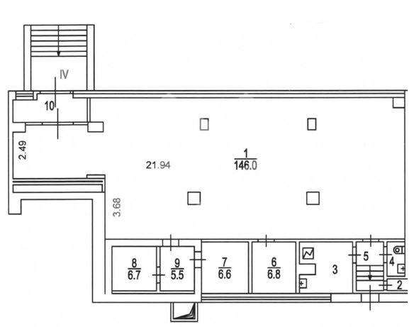
Аренда торговой площади в ЖК Прокшино, 91,7 м2
Аренда в месяц:
300 000 ₽
Цена м²/год:
39 252 ₽
г Москва, р-н Коммунарка, Прокшинский пр-кт, д 7
Помещение свободного назначения на первой линии. Плотный жилой массив. Рядом две школы и колледж. Менее 6 минут от станции метро "Юго-Восточная". Помещение расположено на первом этаже 9-этажного жилого дома. Открытая планировка, отдельный вход со стороны улицы и двора. Витринное остекление, место для вывески.
