Продажа производственного помещения на улице Береговой, 11 473,4 м2
Цена:
3 500 000 000 ₽
Цена м²:
305 053 ₽
г Москва, Береговой пр-д, д 4 к 3 стр 5
Здание общей площадью 1034 кв. м. в складском комплексе категории Light Industrial в промышленном парке общей площадью 320 тыс м2 в Балашихе, на Новском шоссе.
Преимущества:
Развитая транспортная инфраструктура: в 200м выезд на Горьковское шоссе - М-7 Волга, 29-й километр.
14 минут и 14 км до МКАД.
Открытая планировка + офисные блоки.
Офисные помещения с отделкой расположены на 2 уровнях, что позволяет разделить функции офиса и торгового зала.
Парковка на территории комплекса для разных типов а/м.
Рядом - остановки общественного транспорта, жилой микрорайон, магазины и кафе.
Технические характеристики:
Здание А
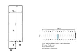
Площадь блока: 1034 кв. м., возможно объединение любого количества блоков.
Склад - 870м2, офис - 164м2.
Высота потолков: 8 метров.
Шаг колонн: 12х18.
Нагрузка на пол: 5 т/м2.
Ворота: доковые на высоте 1,1 м или в 0 - 1 шт.
Электрическая мощность: 30 кВт, возможно увеличение.
Зона погрузки/разгрузки: 0 и/или 1,2 м.
Пол: бетонный с антипылевым покрытием.
Вентиляция: офисные помещения-вытяжка; складские помещения-естественная.
Система видеонаблюдения.
Плоская кровля с внутренним водостоком.
Возможность установления кран-балки.
Парковочных мест для легкового транспорта: 2.
Парковочных мест для грузового транспорта: 1.
Так как корректная информация отсутствует на Яндекс.Картах, введен ближайший.
