Продажа производственного помещения на улице Береговой, 11 473,4 м2
Цена:
3 500 000 000 ₽
Цена м²:
305 053 ₽
г Москва, Береговой пр-д, д 4 к 3 стр 5
FLEX BOX: Здание общей площадью 8172 кв. м., с характеристиками big box и гибким делением блоков, характерным для light industrial в производственно-складском комплексе класса "А" в промышленном парке "Кувекино".
Преимущества:
Комплекс общей площадью 340 тыс.м2 находится в Новой Москве и расположен на проспекте Славского - новой 4 полосной дороге соединяющей Варшавское и Калужское шоссе.
20 минут от м. Троицк или Ольховая.
Развитая транспортная инфраструктура.
Сложившееся складское и промышленное окружение.
1, 2, 3 этаж.
Открытая планировка + офисно-торговый блок: 3 уровня, с готовой отделкой.
Спринклерная система пожаротушения.
Закрытая территория.
В шаговой доступности остановка общественного транспорта Евсеево.
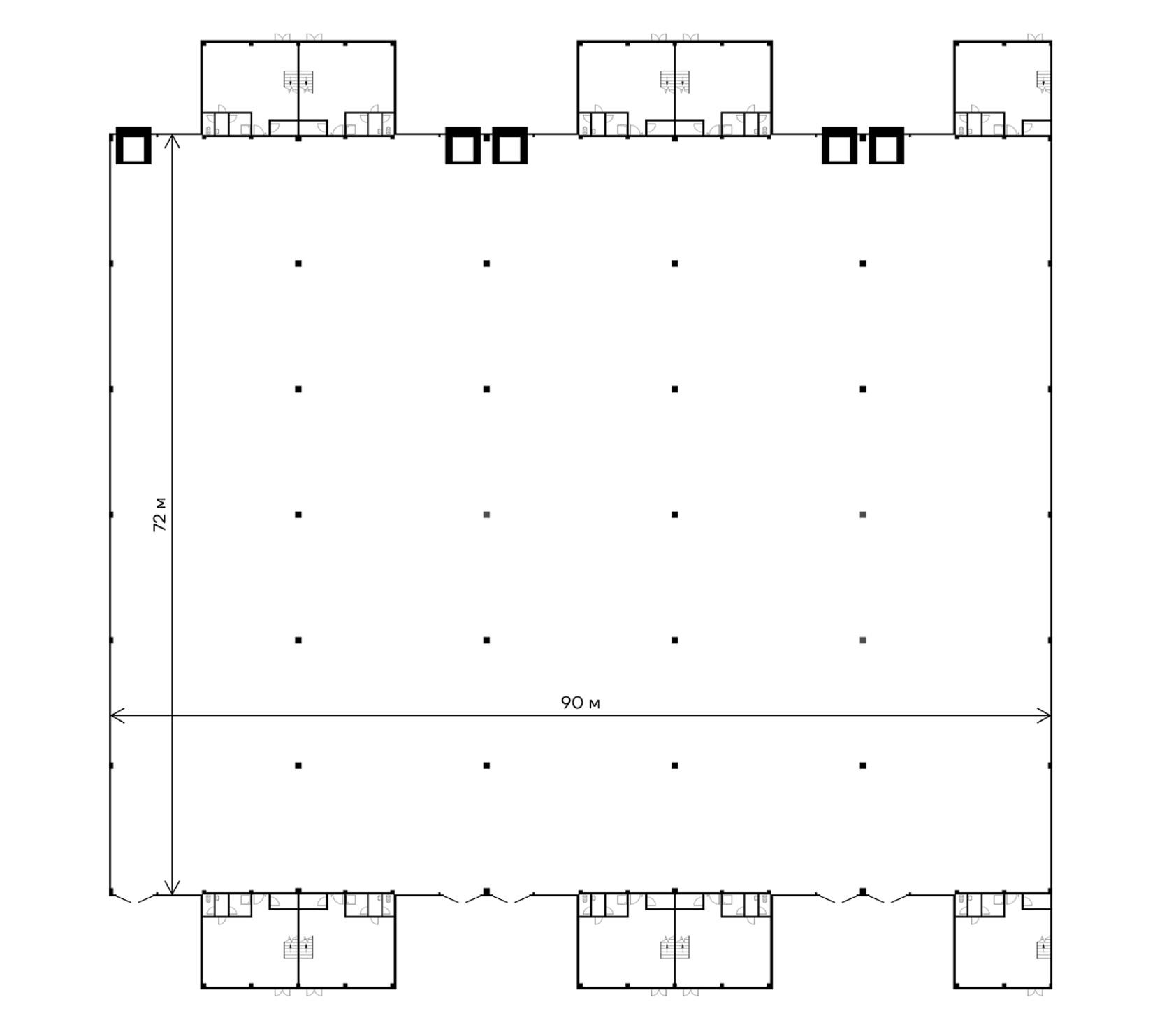
Технические характеристики в корпусе L:
Площадь блока: 8172 м2, из них:
6535 м2 - складская площадь, 1640 м2 - офисная.
Доковые ворота - 5 шт.
Шаг колонн: 12х18 м.
Высота потолка рабочая : 8 м.
Нагрузка на пол: 8т/м².
Электричество - 180 кВт, 20 вт/м2
Погрузочные зоны в каждом блоке на уровне 1.2 м и 0 м от земли.
Погрузочные зоны докового типа оборудованы докшелтерами и доклевеллерами.
По запросу возможна установка въездной рампы или пандуса.
Так как корректный адрес отсутствует на Яндекс.Картах, введен ближайший.
