Аренда офиса в БЦ Северное Сияние, 2 290 м2
Аренда в месяц:
11 175 200 ₽
Цена м²/год:
58 560 ₽
г Москва, ул Правды, д 26
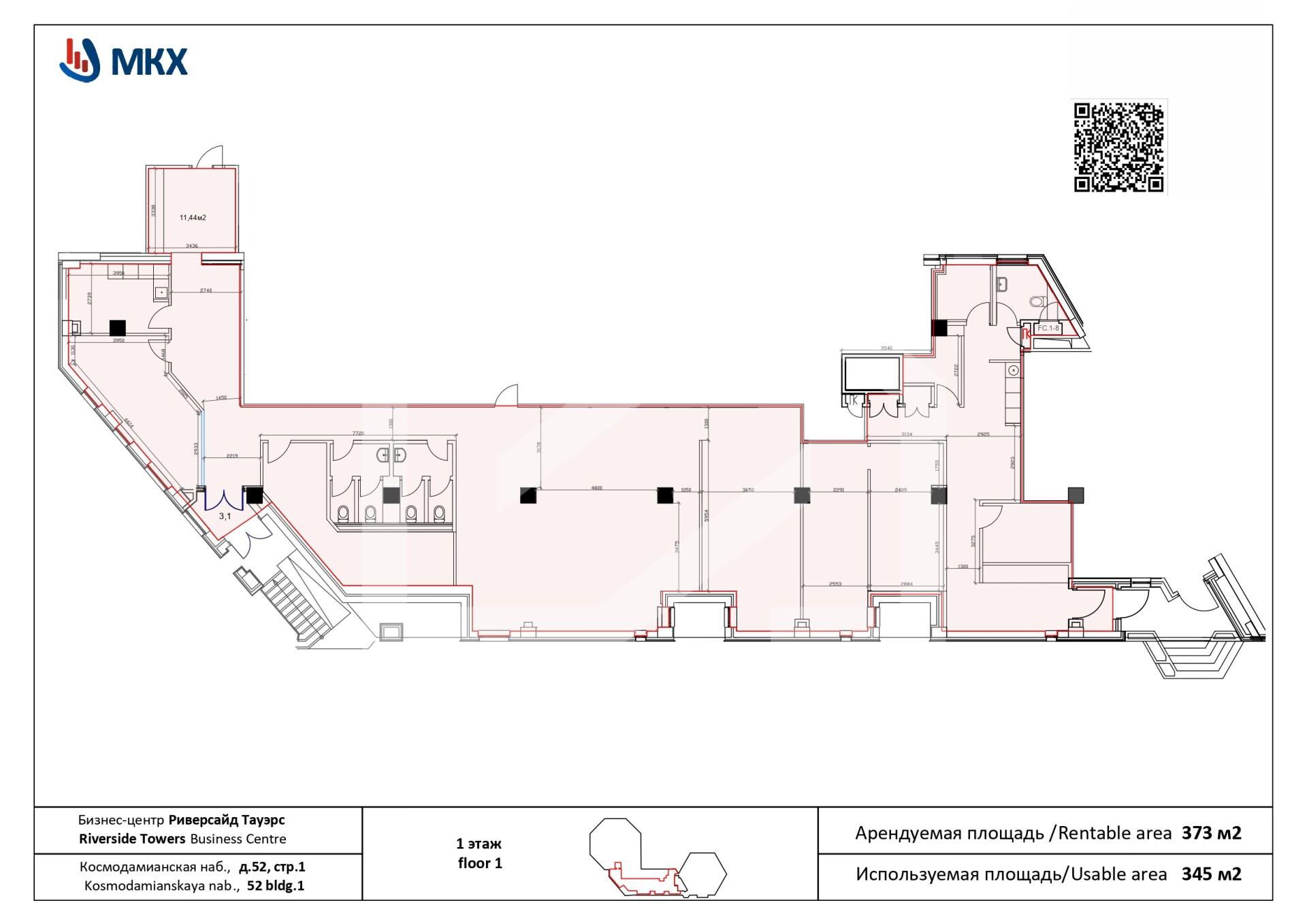
Офисное помещение в бизнес-центре Riverside Towers (Риверсайд Тауэрс) (52с1), расположенном недалеко от метро «Павелецкая», «Таганская», «Новокузнецкая», «Крестьянская застава». Здание площадью 18 025 кв. м, 1996 года постройки, имеет 14 этажей, относится к классу A.
Офис 386 кв. м. на 1 этаже. Кабинетная планировка. Офисная отделка. Готов к въезду.
