Продажа производственного помещения на улице Береговой, 11 473,4 м2
Цена:
3 500 000 000 ₽
Цена м²:
305 053 ₽
г Москва, Береговой пр-д, д 4 к 3 стр 5
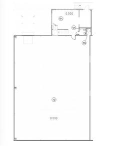
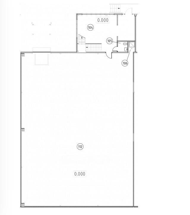
Предлагаем складское помещение общей площадью 1 963,32 м2 в индустриальном парке Есипово-4. Корпус G, блоки 2+3.
Преимущества объекта:
32 км. от МКАД по Ленинградскому шоссе, вблизи трассы А-107 и ЦКАД.
Комплекс складских помещений.
Развитая транспортная инфраструктура.
Цифровой промышленный коворкинг Industrial City в формате Light Industrial прошел сертификацию ассоциации по уровню готовности зданий к облачным подключениям и соответствию стандартам цифровой экономики.
Парки Industrial City подключены к мощным центрам обработки данных, имеют высокий уровень надежности и безопасности.
Готовая инженерная инфраструктура.
Парковка на территории комплекса.
Доступ к производственно-складским помещениям 24/7.
Комплексная эксплуатация объектов.
Охраняемая территория.
Технические характеристики:
Производственная площадь - 1 743,46 м2, офисы - 219,86 м2.
Рабочая высота: 8 м.
Зона погрузки / разгрузки.
2 доковых ворот 2 входа.
Электричество: 50 кВт, возможно увеличение.
Количество грузовых парковочных мест - 2.
Количество легковых парковочных мест - 6.
