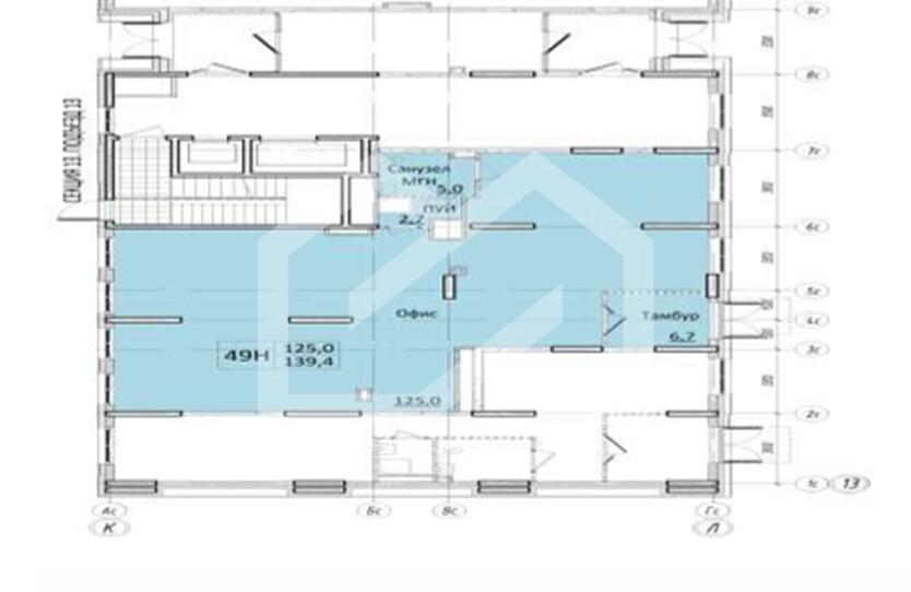
Аренда торговой площади в ЖК Прокшино, 91,7 м2
Аренда в месяц:
300 000 ₽
Цена м²/год:
39 252 ₽
г Москва, р-н Коммунарка, Прокшинский пр-кт, д 7
Помещение свободного назначения формата Street Retail в центре жилого комплекса «Мытищи Парк». Первая линия. ЖК состоит из 7 корпусов, этажностью от 11 до 17 этажей, рассчитан на 4 316 квартир комфорт-класса. 25 минут на автомобиле от станции метро Медведково. Плотный жилой массив. Интенсивный пешеходный и автомобильный трафик. 1 этаж 17-этажного жилого дома. Отдельный вход с фасада. Открытая планировка. Витринное остекление. Зона погрузки/разгрузки. Место для вывески. Парковка перед фасадом. Ввод в эксплуатацию: 2 кв. 2025 г. Электрическая мощность: 28 кВт. Высотка потолков: 4 м.
