Аренда здания у метро Октябрьское поле, 5 176,2 м2
Аренда в месяц:
10 282 000 ₽
Цена м²/год:
23 832 ₽
г Москва, ул Маршала Рыбалко, д 2
Отдельно стоящее здание в ЮВАО. Первая линия ул. Коновалова. 6 минут пешком от станции МЦД Чухлинка. Плотно населенный жилой микрорайон. Интенсивный автомобильный и пешеходный трафик. Отличная видимость со стороны дороги. 2 этажа. 3 отдельные входные группы с фасада. Кабинетная планировка. В помещении выполнен ремонт под медицинский центр. Место для рекламной вывески. Установленная система видеонаблюдения и контроля доступа. Частная территория. На территории предусмотрена парковка для посетителей и работников на 30 м/м. Собственная огороженная территория. Рядом остановка общественного транспорта.
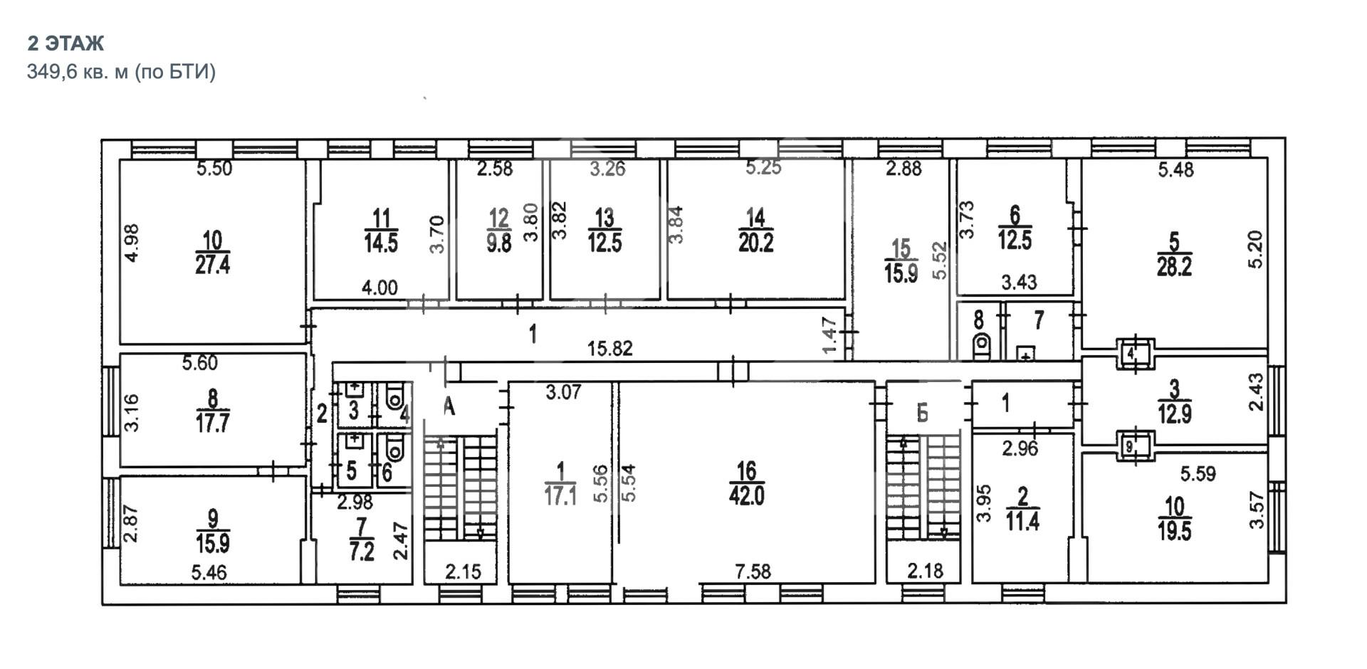
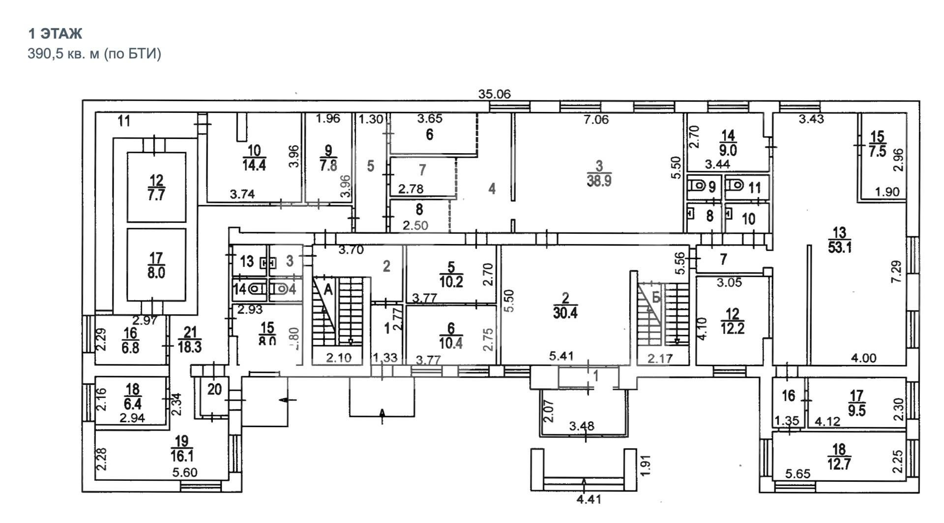
Технические характеристики:
1 этажа: 390,5 кв.м
2 этаж: 349,6 кв.м
Площадь земельного участка: 4080 кв.м
Электрическая мощность: 50 кВт
