Продажа готового бизнеса у метро Спартак, 1 541,1 м2
Цена:
462 330 000 ₽
Цена м²:
300 000 ₽
г Москва, Волоколамское шоссе, д 71 к 2
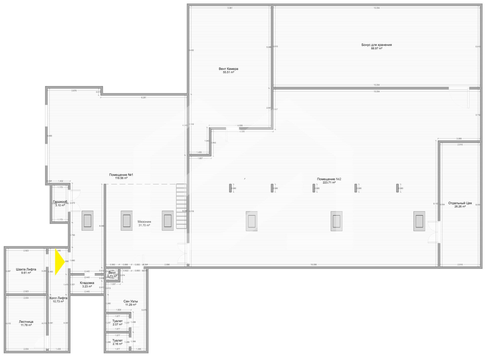
Помещение свободного назначения с сетевым арендатором. 18 минут пешком от станции метро Народное Ополчение. Удобный подъезд с проспекта Маршала Жукова, Звенигородского шоссе, Нижних Мневников и Карамышевской набережной. Плотный жилой массив. Рядом элитная жилая застройка и Серебряный Бор. Интенсивный автомобильный и пешеходный трафик. 7 этаж отдельно стоящего здания. Свободная планировка. Ремонт в стиле лофт. Площадь: по документам 400 кв. м., по факту 450 кв. м. + дополнительная площадь для хранения под крышей с высотой потолка 1.6 - 0.8 м. (около 100 кв. м.). Мезонин 35 кв. м. 3 фасадных окна, 6 мансардных окон. ХВС, канализация. Вентиляция: приточно-вытяжная установка 10 000 куб. м./час. Отопление магистральное. Грузопассажирский лифт на 1500 кг. Территория огорожена и находится под круглосуточной охраной. Парковка: 9 машиномест в аренде у города. Электрическая мощность: 30 квт (3 фазы), имеется возможность добавить 80 квт, подключившись к ТП здания. Дополнительно получены тех. условия на 100 квт от Моэск. Высота потолков: от 1,8 м до 4,8 м. Арендатор: Мята Lounge. МАП: 520 000 руб. Окупаемость: 10,4 лет.
