Продажа здания в г. Видное, 1 644,1 м2
Цена:
223 839 000 ₽
Цена м²:
136 146 ₽
Московская обл, г Видное, поселок Битца, мкр Южная Битца, ул Парковая, д 1 стр 19рнв
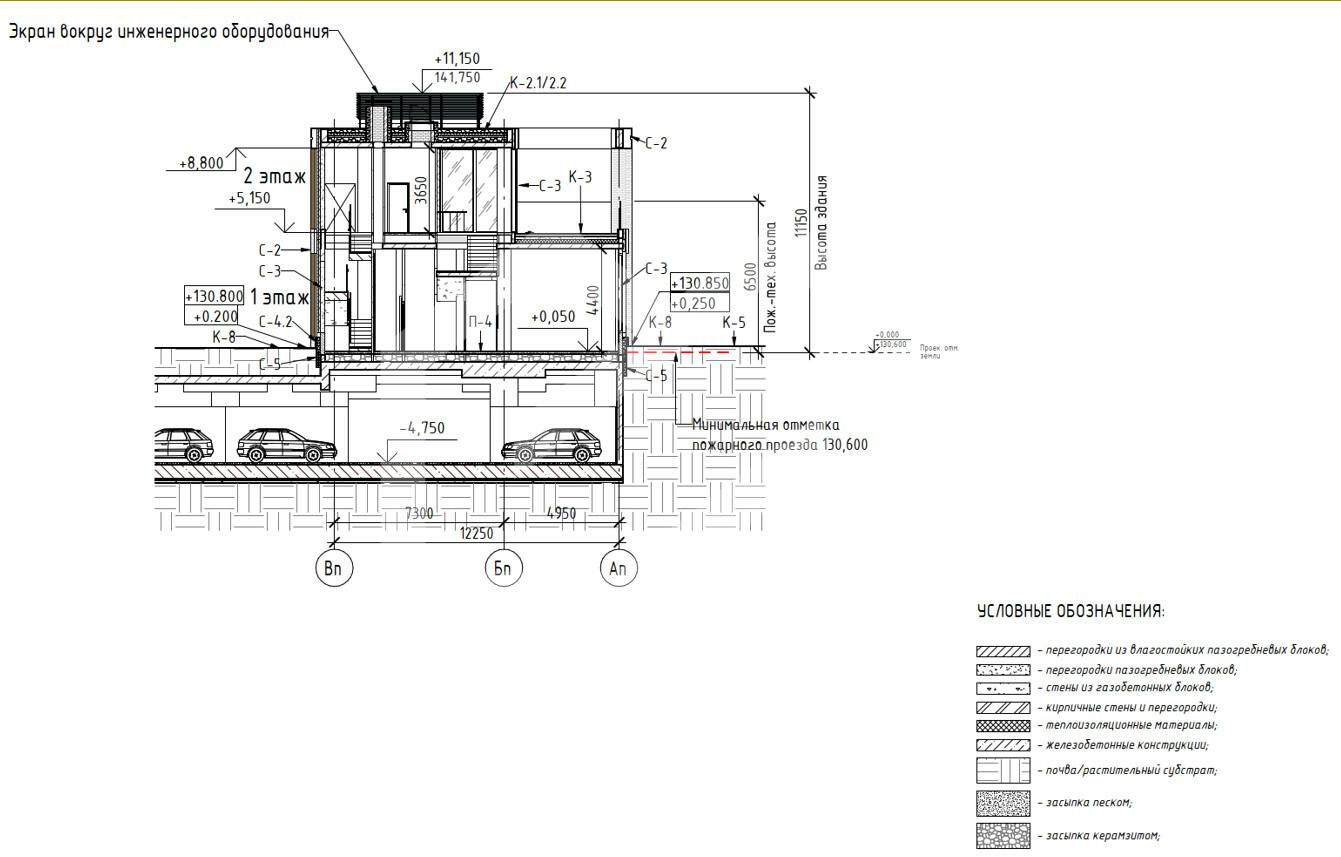
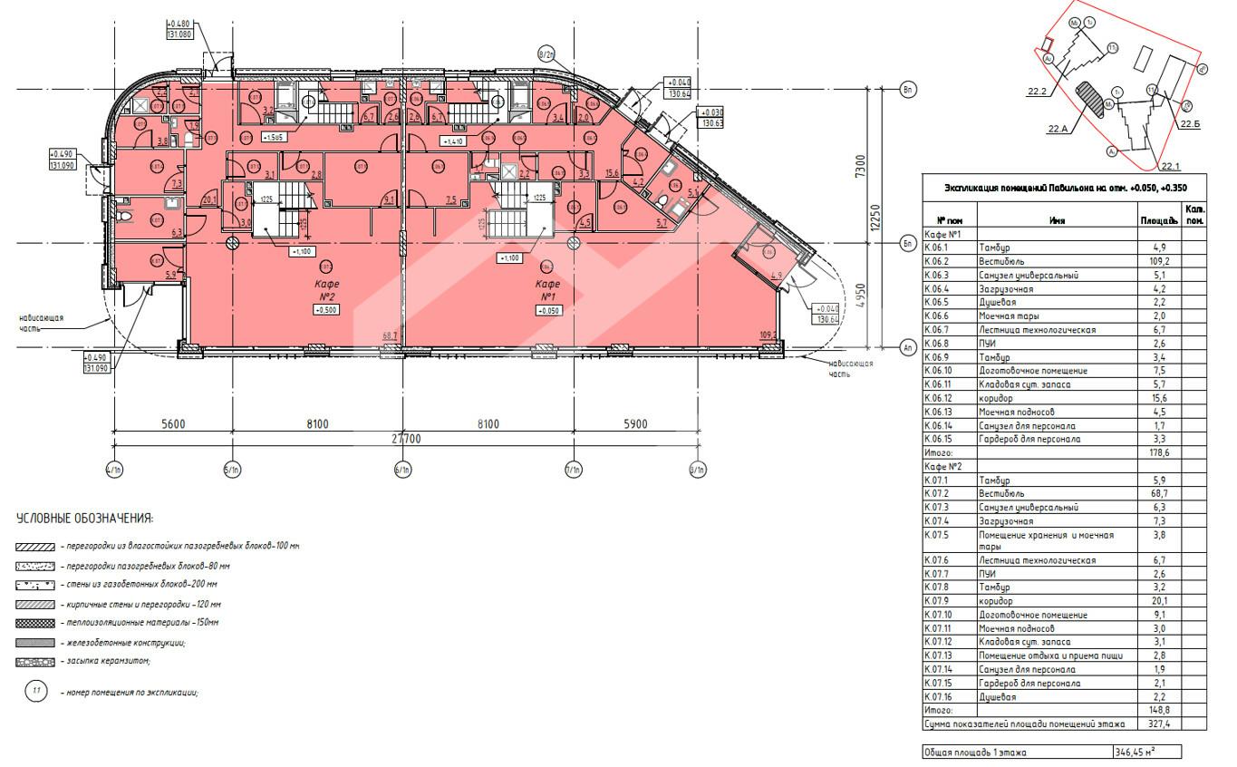
Отдельно стоящее здание под общепит в жилом комплексе «Клубный город на реке Primavera». Первая линия Покровской набережной. ЖК состоит из 3 кварталов переменной этажности (от 5 до 22 этажей). 13 минут пешком от станции метро Спартак. Район современной жилой застройки. Высокий автомобильный и пешеходный трафик. 1 этаж (327,4 кв. м.), 2 этаж (343 кв. м.) и открытая терраса. 5 отдельных входных групп. Зальная планировка. Панорамное остекление. Вытяжка для общепита. Место для вывески. Парковка вдоль дороги. Есть возможность перепланировки. Электрическая мощность: 80 кВт. Высота потолков: 1 этаж – 4 м.; 2 этаж – 3.65 м.
