Продажа готового бизнеса у метро Спартак, 1 541,1 м2
Цена:
462 330 000 ₽
Цена м²:
300 000 ₽
г Москва, Волоколамское шоссе, д 71 к 2
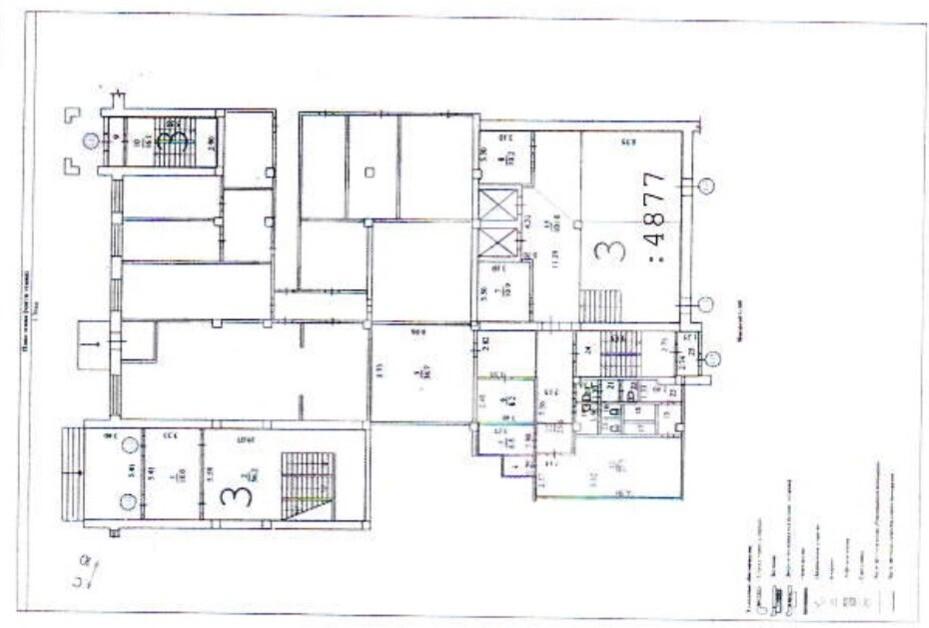
Помещение свободного назначения с арендаторами в Реутове. Плотный жилой массив. Сложившееся торговое окружение. Ближайшая станция - МЦД Реутов. Первая линия ул. Октября. Интенсивный автомобильный и пешеходный трафик от МЦД Реутов до ст. метро Новокосино. Торговый центр, подземный переход, соединяющий две части города. 2-й этаж. Возможность надстройки 3-го этажа. Зальная планировка, витринное остекление, арендаторы располагаются на втором этаже, входы с первого этажа. Свой дебаркадер для разгрузки и отдельный технический вход с первого этажа. Место для вывески. Вытяжка для общепита. Рядом парковка и остановка общественного транспорта.
Технические характеристики:
Электрическая мощность: 150 кВт
Высота потолков: 3 м
Арендаторы:
Смешные цены (1 304 м2), Чайхана (200 м2), Пятерочка (35 м2). ДДА
(Смешные цены и Чайхана) 1 500 м2
