Продажа готового бизнеса у метро Спартак, 1 541,1 м2
Цена:
462 330 000 ₽
Цена м²:
300 000 ₽
г Москва, Волоколамское шоссе, д 71 к 2
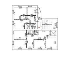
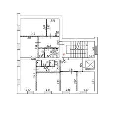
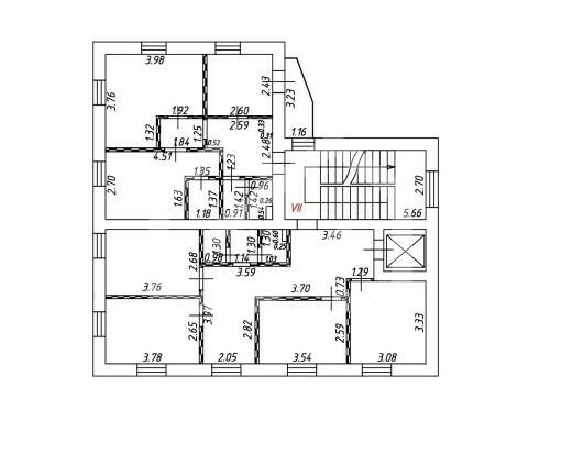
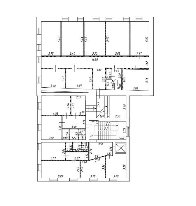
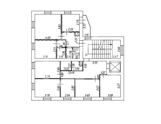
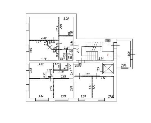
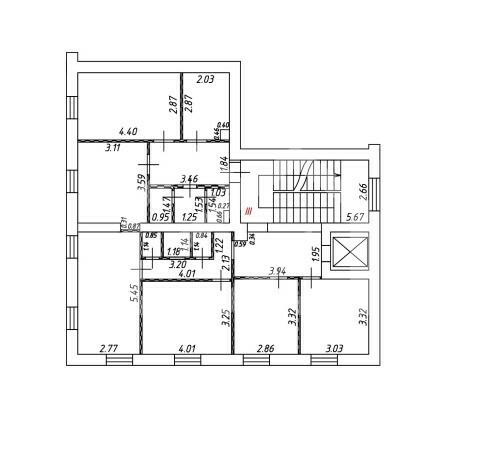
Предлагается отдельно стоящее здание с арендатором на первой линии домов ул. 1-я Пугачевская. Подвал,1,2,3,4,5,6,7 этажи.
Преимущества:
Развитая транспортная инфраструктура: выезд на СВХ в 2 км.
Плотный жилой массив.
Сложившееся торговое окружение.
Ближайшая станция метро - Преображенская площадь (13 минут).
В здании есть лифт грузоподъемностью 500 кг, сейчас на консервации.
Все коммуникации центральные, от поставщиков на прямую.
Есть возможность использовать под хостел, перевести в апартаменты или под офис.
Технические характеристики:
Площадь блока: 1 226,1 кв.м
Электрическая мощность: 75 кВт
Высота потолков: 3,2 м
Якорный арендатор:
"Хостел - 1" с номерным фондом в 32 номера (занимает всё здание)
ДДА
МАП: 1 000 000 руб.
Индексация 5% (по соглашению сторон)
Есть возможность расторгнуть договор.
