Аренда торговой площади в ЖК Прокшино, 91,7 м2
Аренда в месяц:
300 000 ₽
Цена м²/год:
39 252 ₽
г Москва, р-н Коммунарка, Прокшинский пр-кт, д 7
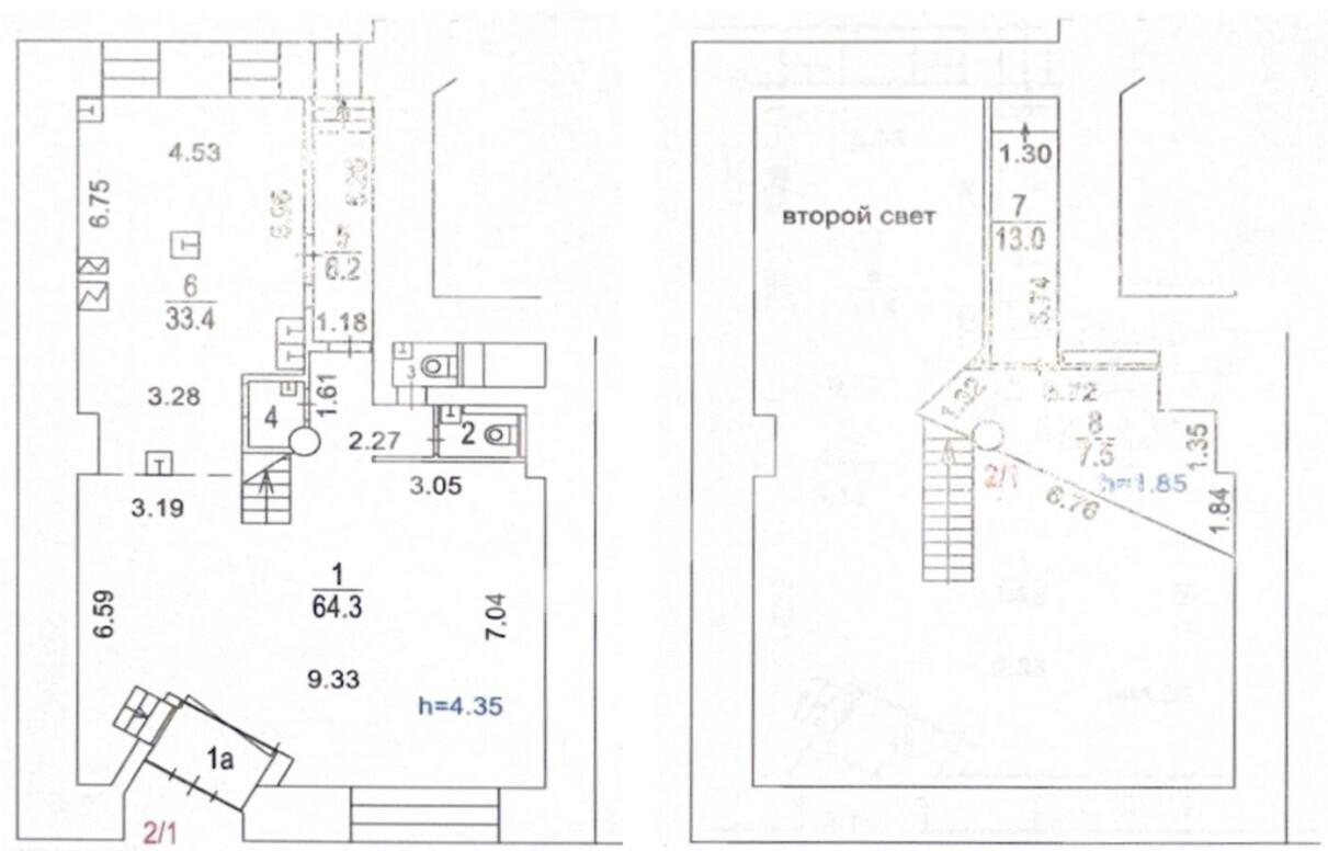
Помещение свободного назначения на первой линии домов по Садовому кольцу. 5 минут пешком от станции метро Маяковская. Интенсивный пешеходный и автомобильный трафик. 1 этаж и антресоль 9-этажного жилого дома. Отдельный вход с фасада и со двора. Открытая планировка. Высота потолков: 1 этаж - 4,35 м, антресоль - 1,8 м. Электрическая мощность: 60 кВт. Вентиляция: согласованная вытяжная. Коммунальные услуги по приборам учета.
