Продажа готового бизнеса у метро Спартак, 1 541,1 м2
Цена:
462 330 000 ₽
Цена м²:
300 000 ₽
г Москва, Волоколамское шоссе, д 71 к 2
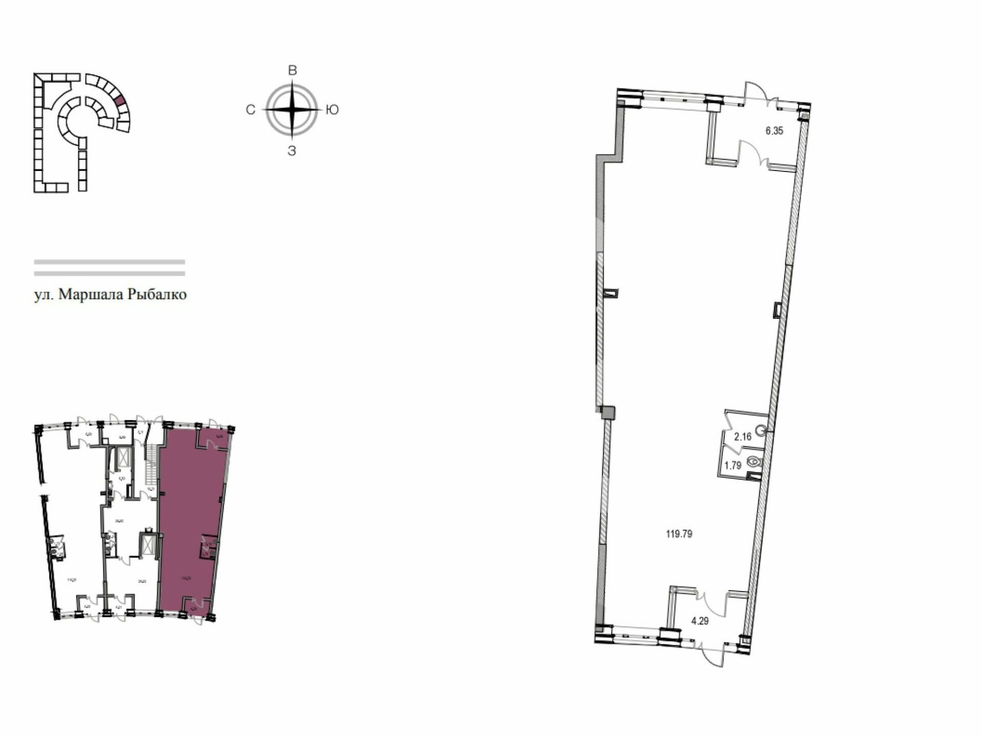
Помещение свободного назначения в ЖК "Маршал" (Корпус 9). «МАРШАЛ» — многофункциональный жилой комплекс, задуманный как самодостаточный, гармоничный и комфортный ГОРОД в ГОРОДЕ. Он станет одним из самых удобных мест жизни в Москве. Густонаселенный жилой массив. 2 минуты пешком до станции МЦК Панфиловская, 8 мин до станции метро Октябрьское Поле. 1-й этаж 11-этажного здания, два входа, витринные окна, высота потолков - 3 м.
Арендатор:
Студия фитнеса и растяжки
NeoДжоуль (NeoJoule)
