Продажа готового бизнеса у метро Спартак, 1 541,1 м2
Цена:
462 330 000 ₽
Цена м²:
300 000 ₽
г Москва, Волоколамское шоссе, д 71 к 2
Бизнес-центр "Серебрякова" класса В+, расположен в 7 минутах пешком от станции метро Ботанический Сад.
Район с развитой инфраструктурой.
Напротив бизнес центра расположен ЖК Silver, неподалеку торговый центр Европолис.
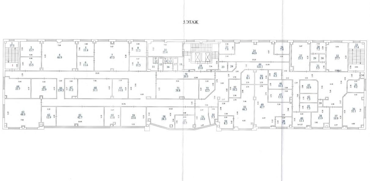
Здание площадью 6.936 метров имеет 6 наземных этажей.
Земля площадью 4.793 м2 в собственности!
На 1 этаже расположены торговые помещения с отдельным входом и панорамным остеклением, с сетевыми арендаторами.
На остальных этажах офисные помещения кабинетной планировки.
Презентабельная входная группа, в зоне ожидания расположена кофейня.
Лифты-2
Система приточно-вытяжной вентиляции, кондиционеры.
Большая парковка на территории - около 85 м\м.
Рядом остановки общественного транспорта.
Здание заселено арендаторами на 100%.
