Продажа здания в г. Видное, 1 644,1 м2
Цена:
223 839 000 ₽
Цена м²:
136 146 ₽
Московская обл, г Видное, поселок Битца, мкр Южная Битца, ул Парковая, д 1 стр 19рнв
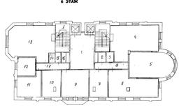
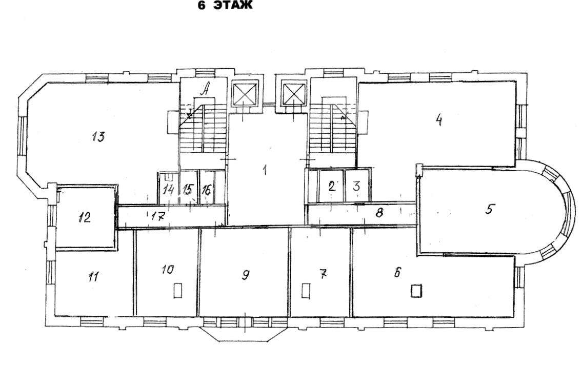
Отдельно стоящее здание в районе Басманный. Центр жилого массива. 10 минут пешком от ст. метро «Бауманская». 6 этажей + мансарда. Здание введено в эксплуатацию в 1997 г. 3 входа. Кабинетная планировка. Офисная отделка. Есть возможность перепланировки (включая Open Spaсe). Два лифта Schindler (Швейцария). Все коммуникации центральные. Прилегающий земельный участок 1409 кв. м в аренде до 2058 года. Подземный паркинг на 18 м/м. Наземный паркинг на 15 м/м.
Технические характеристики
Электрическая мощность: 370кВт.
Высота потолков: от 2.8 до 3.2 м.
