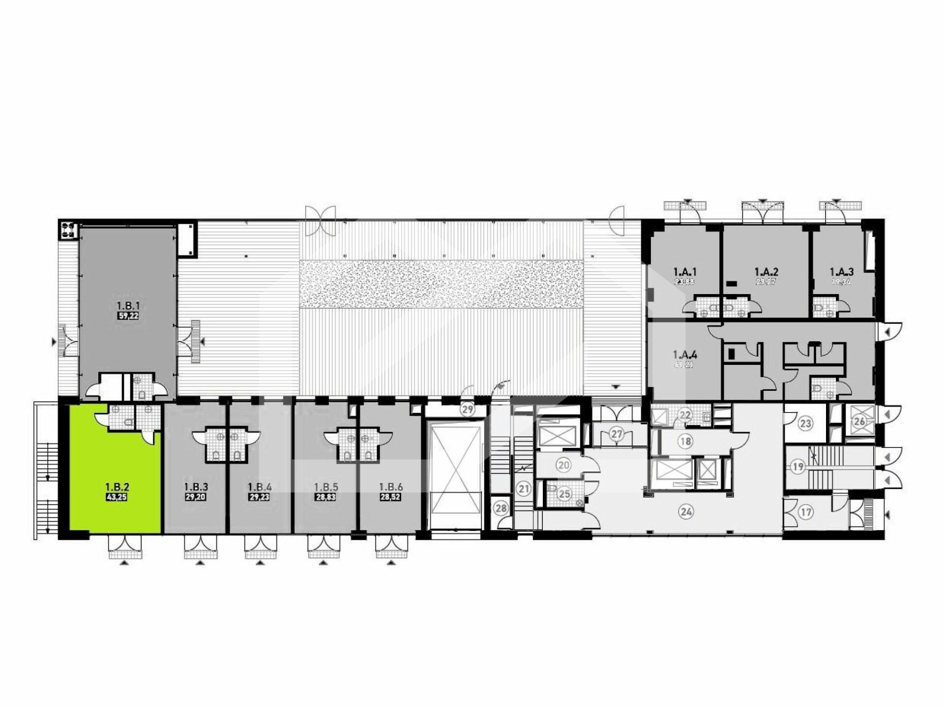
ЖК: Din House, Корпус: Din Haus, Продается помещение в Апарт-комплексе Din Haus. ЖК выполнен в стиле берлинского минимализма от московского архитектурного бюро Wall. Представляет собой 11-этажный дом на 46 апартаментов. На верхнем этаже представлены пентхаусы. К комплексу Din Haus примыкает свой благоустроенный миниатюрный парк. На благоустроенной территории проекта находится собственный камерный внутренний двор. Для владельцев автомобилей предусмотрен подземный паркинг на 19 мест. Рекламный потенциал обусловлен витринным остеклением и возможностью размещения вывески., Всего этажей: 1, Площадь блока: 43.25 кв.м., Количество входов: 1, Окна: витринные, Зона разгрузки/погрузки, Электрическая мощность: 13кВт, высота потолков: от 4