Продажа готового бизнеса у метро Дмитровская, 200 м2
Цена:
75 000 000 ₽
Цена м²:
375 000 ₽
г Москва, ул Тимирязевская, д 10/12
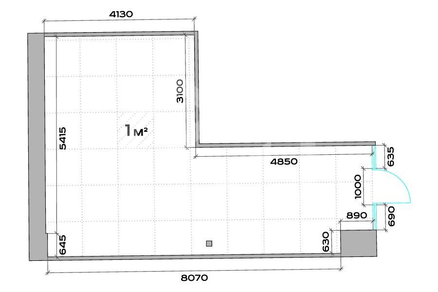
Помещение свободного назначения с арендатором в ТЦ "Зелёный" на первой линии Огородного проезда. 2 минуты пешком от станции метро "Бутырская". 2 км до Дмитровского шоссе, 4.8 км до Алтуфьевского шоссе, 5.2 км до ТТК. Густонаселённый жилой массив. Сложившееся торговое и деловое окружение. Интенсивный автомобильный и пешеходный трафик. 1 этаж 2-этажного здания. Общий вход. Открытая планировка. Высота потолков: от 4.5 м. Электрическая мощность: 8 кВт. Витринное остекление. Возможность размещения вывески. Рядом находится остановка общественного транспорта.
Арендатор: Студия маникюра, ДДА. МАП: 110 060 руб.
