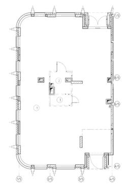
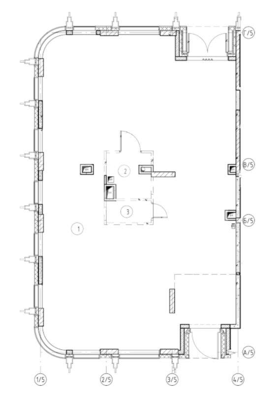
Аренда торговой площади у метро Филатов луг, 91,7 м2
Аренда в месяц:
300 000 ₽
Цена м²/год:
39 252 ₽
г Москва, р-н Коммунарка, Прокшинский пр-кт, д 7
Помещение свободного назначения в ЖК "Шагал". Корпус 4. ЖК состоит из 33 корпусов переменной этажности (от 6 до 28 этажей), рассчитанных на 6 238 квартир. 5 минут на автомобиле от станции МЦК "ЗИЛ". Удобный выезд на ТТК, Варшавское и Загородное шоссе. Плотный жилов массив. Мало коммерческих помещений, что гарантирует высокий спрос. Весь район спроектирован на основе принципа 15-минутной доступности необходимой инфраструктуры и продуманных прогулочных маршрутов. Стабильный автомобильный и пешеходный трафик. 1 этаж 15-этажного жилого дома. 2 отдельные входные группы с фасада. Открытая планировка. Возможность увеличения площади за счет антресоли. Вытяжка под общепит. Высота потолков: 6 м. Электрическая мощность: 30 кВт. витринное остекление. Место для вывески. Наземная парковка. Ввод в эксплуатацию: 4 квартал 2025 г.
