Аренда офиса в БЦ Северное Сияние, 2 290 м2
Аренда в месяц:
11 175 200 ₽
Цена м²/год:
58 560 ₽
г Москва, ул Правды, д 26
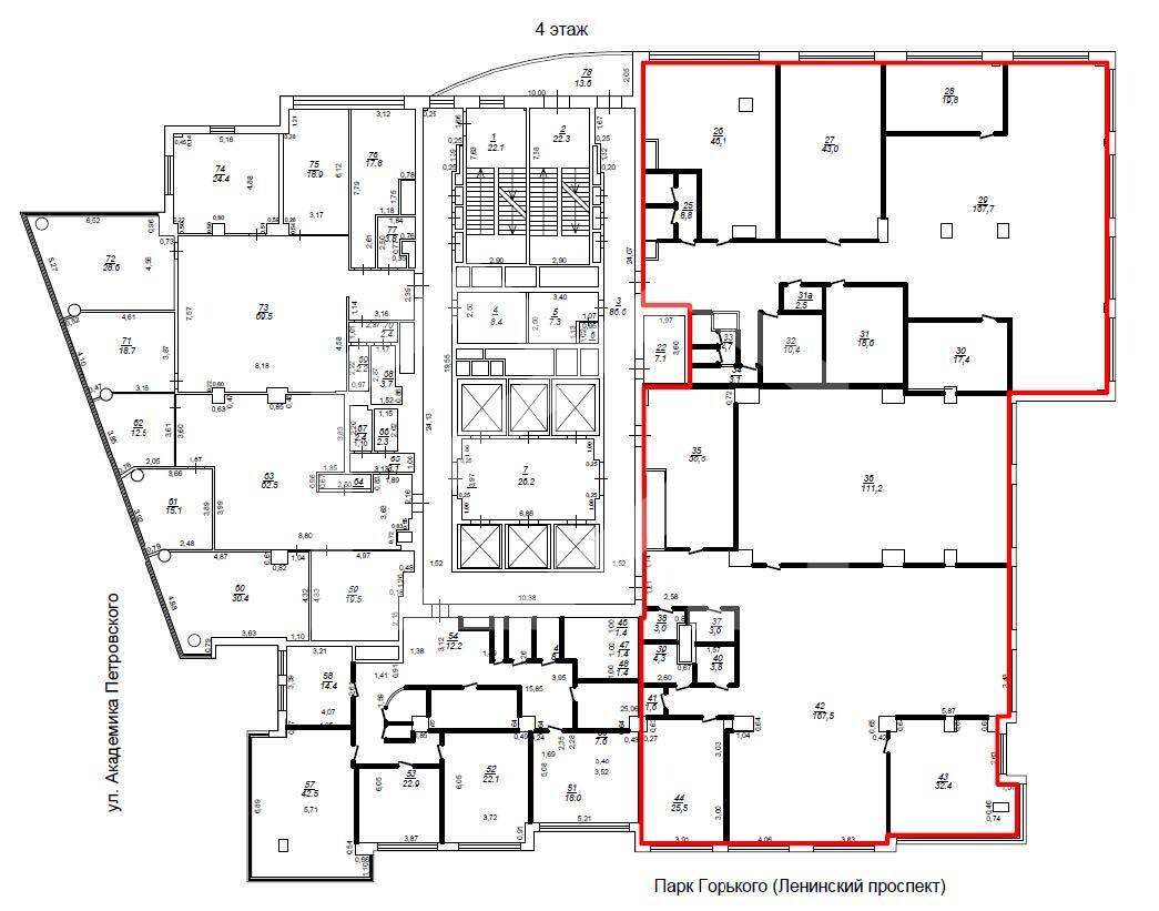
Офисное помещение 827,2 кв.м в бизнес-центре «Central Park Tower». 6 минут пешком от станции метро Шаболовская. Выезд на Садовое кольцо в 1,5 км, расстояние до ТТК - 2,5 км. Рядом с БЦ несколько кафе, супермаркет, аптека, отделение банка, магазины. На 1 этаже служба ресепшн* (стойка администрации при входе), кафе и столовая, отделение банка, магазин, салон красоты, платежный терминал и банкомат. 4 этаж 22-этажного здания. Смешанная планировка ( 3 переговорные, 2 кухни, 4 с/у, 2 входа). Офис с отделкой. Центральное четырехтрубное кондиционирование. Приточно-вытяжная вентиляция, сигнализации (противопожарная и охранная), контроль доступа. 7 скоростных лифтов Otis. Четырехуровневый подземный паркинг.
