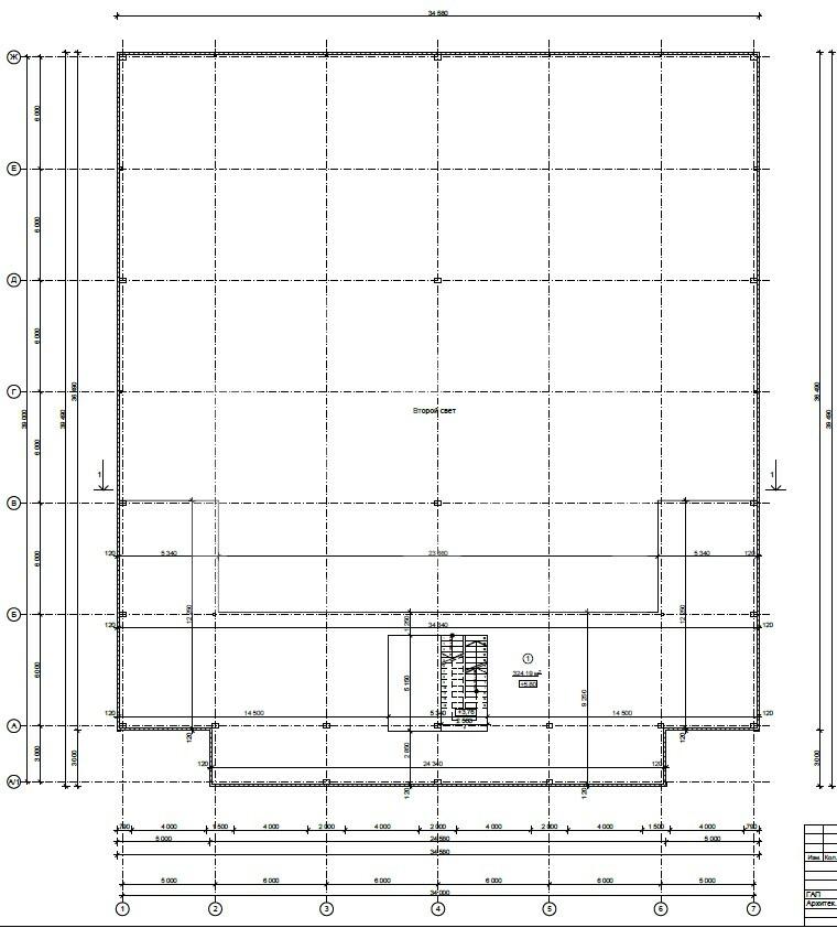
Продажа производственного помещения на улице Береговой, 11 473,4 м2
Цена:
3 500 000 000 ₽
Цена м²:
305 053 ₽
г Москва, Береговой пр-д, д 4 к 3 стр 5
Предлагается блок общей площадью 250 кв. м. в производственно-складском комплексе формата «Лайт индастриал » в д. Кулаково, Раменский р-н МО. Вторая очередь.
Преимущества:
Первая линяя Новорязанского шоссе, отдельный съезд.
До МКАД 22 км - 20 минут на автомобиле, до ЦКАД 24 км.
Транспортная доступность: 7 минут пешком до остановки автобусов Чулково-1; 10 минут на фирменном Шаттле к станции МЦД-3.
Собственная управляющая компания.
Парковки для личного и грузового транспорта с зонами отдыха для водителей.
Широкие проезды между зданиями - для большегрузного транспорта.
На территории - места общественного питания, площадки и помещения для проведения конференций и отдыха.
Трехслойные экологичные сэндвич панели на фасаде и кровле.
Трехслойные стеклопакеты.
Сборный железобетонный каркас.
Вертикальные связи вынесены на фасад для увеличения эффективности внутренних площадей.
Железобетонные фасады в придоковой зоне для увеличения эксплуатационных свойств здания.
Технические характеристики:
Площадь блока: 250 кв. м.
Автоматические доковые ворота на уровне "1,2".
Тип: сухой (+14/+24).
Рабочая высота потолков: 8 метров.
Допустимая нагрузка на пол: 6 т/кв. м. Мезонин: 0.5 т/кв. м.
Количество доклевеллеров: 1.
Количество докшелтеров: 2.
Шаг колонн: 12х17 м.
Максимальная мощность электроэнергии: от 20 кВт на блок, с возможностью увеличения.
Теплоснабжение на модуль: мобильная тепловая установка с 2 газовыми котлами на 80 кВт/час, на блок: 2x40 кВт.
ЗУ под зданием (+3 м по периметру) в собственности покупателя.
Возможность приобретения блоков: 1 486 кв. м, 750 кв. м и 250 кв. м.
Рассрочка платежа.
Без комиссии для покупателя.
Так как корректный адрес отсутствует на Яндекс.Карте, введен ориентировочный.
