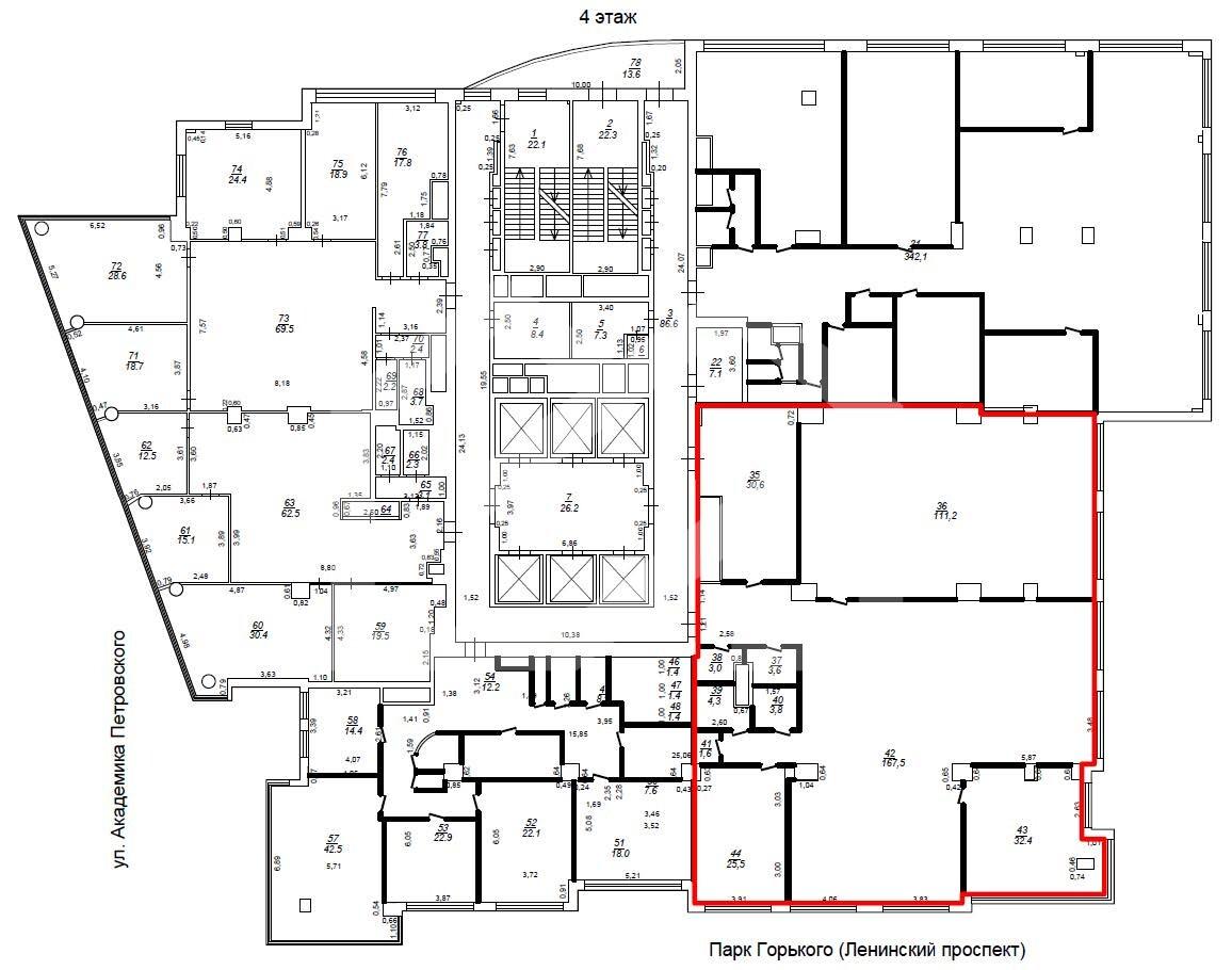
Аренда офиса в БЦ Гранатный 24/4 стр 2, 490 м2
Аренда в месяц:
3 000 000 ₽
Цена м²/год:
73 464 ₽
г Москва, Гранатный пер, д 24/4 стр 2
Офисное помещение 437,2 кв.м в бизнес-центре «Central Park Tower». 6 минут пешком от станции метро Шаболовская. Выезд на Садовое кольцо в 1,5 км, расстояние до ТТК - 2,5 км. Рядом с БЦ несколько кафе, супермаркет, аптека, отделение банка, магазины. На 1 этаже служба ресепшн, кафе и столовая, отделение банка, магазин, салон красоты, платежный терминал и банкомат. 4 этаж 22-этажного здания. Смешанная планировка. Офис с отделкой. Центральное четырехтрубное кондиционирование. Приточно-вытяжная вентиляция, сигнализации (противопожарная и охранная), контроль доступа. 7 скоростных лифтов Otis. Четырехуровневый подземный паркинг.
