Продажа производственного помещения на улице Береговой, 11 473,4 м2
Цена:
3 500 000 000 ₽
Цена м²:
305 053 ₽
г Москва, Береговой пр-д, д 4 к 3 стр 5
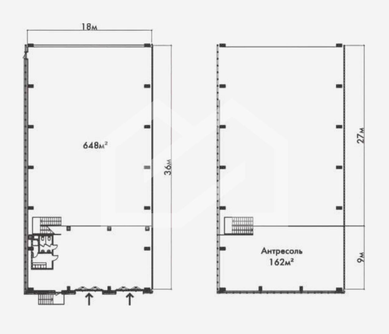
Предлагается склад общей площадью 810 кв. м в Домодедово. 1 этаж + антресоль ОСЗ.
Преимущества:
Парк расположен в черте города.
Возможность эффективно выстроить логистику и поиск трудовых ресурсов для ведения бизнеса.
Два независимых КПП.
Прямой выход на Каширское шоссе и на трассу М4, что дает возможность резидентам построить маршрут как в сторону города, так и области.
ЦКАД в 10 минутах езды.
10 минут от ж/д станции Домодедово.
Выделенный земельный участок под зданием и прилегающей территории.
Возможность установки кран-балки.
Температурные режимы: сухой, холодильный, морозильный.
Ворота оборудованы доклевелерами, докшелтерами фирмы Allutech (Алютек).
Пожарная сигнализация и спринклерная система
пожаротушения.
Режим работы и доступа для собственников и арендаторов 24/7.
Охрана и видеонаблюдение на территории.
Точки общественного питания.
Система контроля удаленного доступа для автотранспорта.
Уборка территорий, ремонт общих коммуникаций и дорог
Организованная парковка для легкового и грузового транспорта.
Технические характеристики:
Площадь блока: 810 кв. м.
Складская площадь: 648 кв. м.
Антресоль: 162 кв. м.
Нагрузка на пол: 1 этаж - 6 т/ кв. м, антресоль - 1 т/ кв. м.
Высота потолка: 9.5 м.
Высота пола: 1 м.
Электрическая мощность: 24 кВт.
